Xây biệt thự là ước mơ của nhiều người, nhưng không ít gia chủ sau khi hoàn thiện mới nhận ra: sang trọng chưa chắc là tiện nghi. Diện tích lớn đôi khi tạo cảm giác trống trải, chi phí vận hành cao khiến niềm vui dần trở thành áp lực. Bởi thế, những mẫu biệt thự cao tầng đẹp – nhỏ gọn, hợp lý và tinh tế – đang dần thay thế kiểu nhà đồ sộ truyền thống.

Với diện tích 98m², công trình này là minh chứng cho lối sống hiện đại, đề cao hiệu quả và cảm xúc thực tế.

Ngoại thất sang trọng, hiện đại và đầy tinh tế
Công trình biệt thự cao tầng đẹp của HT-Home Việt Nam được thiết kế theo phong cách hiện đại với đường nét vuông gọn, khỏe khoắn. Mặt tiền kết hợp giữa gam trắng tinh khôi và nâu gỗ trầm, mang đến vẻ sang trọng nhưng không lạnh lẽo. Hệ cửa kính khung đen viền nhôm giúp ngôi nhà đón trọn ánh sáng tự nhiên, đồng thời mở rộng tầm nhìn ra khuôn viên.

Tầng trệt nổi bật với cửa gỗ tự nhiên bề thế, tạo điểm nhấn mạnh mẽ cho tổng thể mặt tiền. Lan can kính trong suốt giúp các tầng trên trở nên nhẹ nhàng và thoáng đãng hơn. Hệ mái bằng phẳng kết hợp lam bê tông tạo hiệu ứng bóng đổ tinh tế, giảm hấp thụ nhiệt và tăng tính thẩm mỹ. Nhìn từ xa, biệt thự toát lên vẻ hiện đại nhưng vẫn giữ được nét ấm áp, gần gũi với thiên nhiên.

Không gian sân trước được lát đá xám, bố trí cây xanh hai bên giúp cân bằng thị giác. Khuôn viên nhỏ nhưng đủ để tạo khoảng đệm giữa trong và ngoài nhà. Sự cân đối giữa màu sắc, hình khối và vật liệu khiến công trình biệt thự cao tầng đẹp này vừa vững chãi, vừa thanh thoát – thể hiện rõ gu thẩm mỹ của gia chủ.

Công năng khoa học – Không gian sống đúng nghĩa
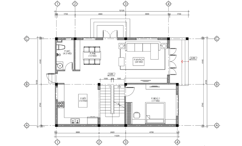
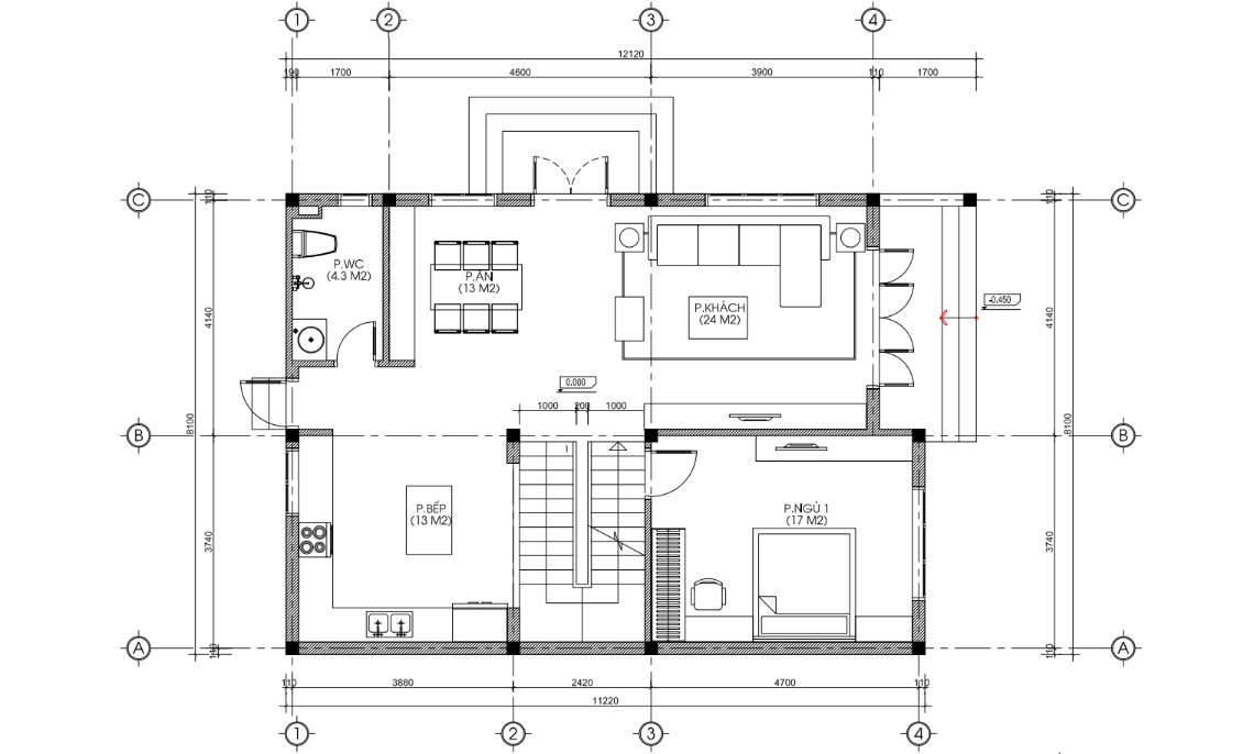
Với diện tích xây dựng 220m², ngôi biệt thự cao tầng đẹp được bố trí ba tầng tiện nghi, đảm bảo đầy đủ công năng sinh hoạt.

Tầng một gồm phòng khách rộng, khu bếp ăn hiện đại và một phòng ngủ nhỏ dành cho người lớn tuổi. Ánh sáng tự nhiên xuyên qua cửa kính lớn, phản chiếu lên nền gạch sáng, mang đến cảm giác rộng rãi và ấm cúng.

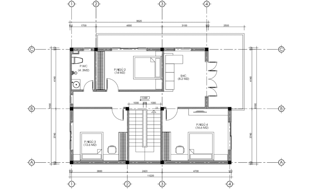
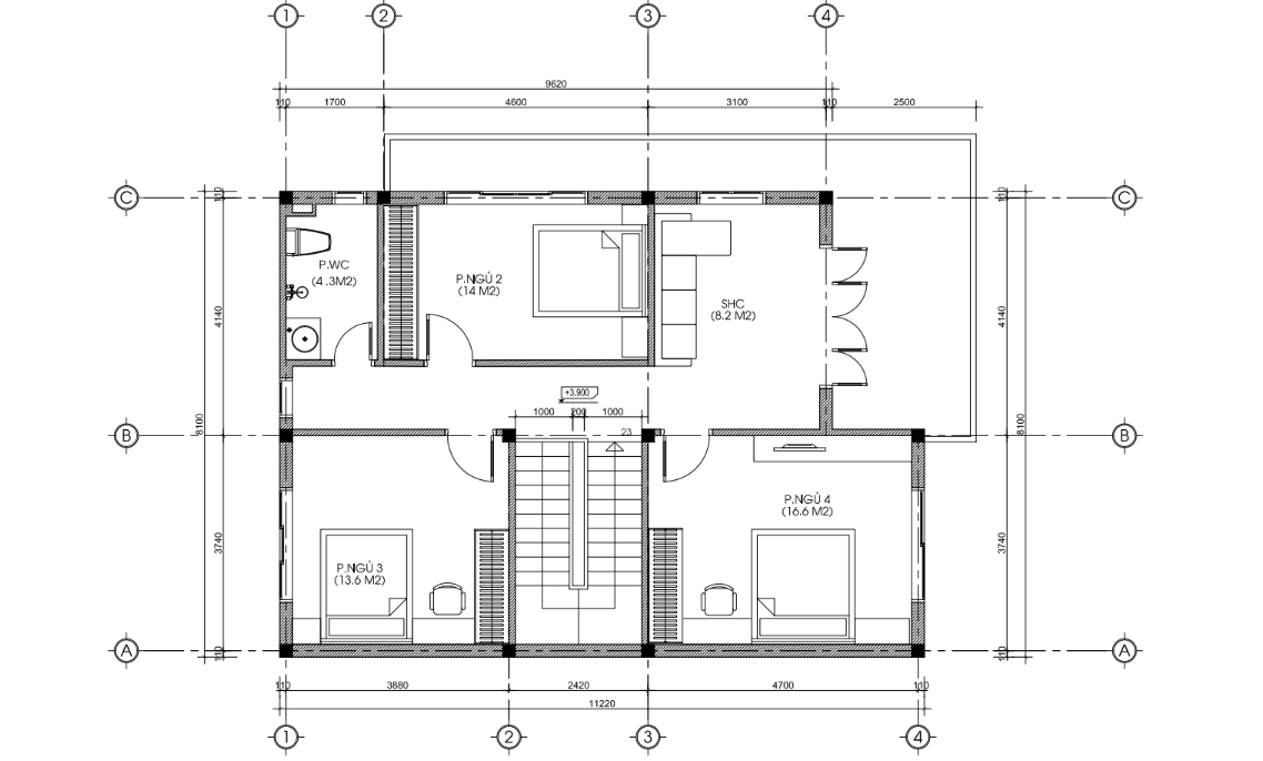
Tầng hai là khu vực nghỉ ngơi chính, gồm ba phòng ngủ và một không gian sinh hoạt chung. Mỗi phòng đều có cửa sổ lớn, thông gió tự nhiên, giữ không khí luôn tươi mới. Cầu thang trung tâm kết hợp giếng trời tạo nên trục lấy sáng tự nhiên, giúp cả ngôi nhà luôn thông thoáng. Cách bố trí không gian linh hoạt này giúp từng thành viên có không gian riêng nhưng vẫn dễ dàng kết nối.

Tầng ba là khu vực phòng thờ và ban công lớn, hướng gió và ánh sáng phù hợp phong thủy. Từ đây, gia chủ có thể tận hưởng tầm nhìn thoáng rộng ra toàn cảnh xung quanh. Không gian trên cao vừa là nơi tĩnh tâm, vừa là góc thư giãn yên bình cho cả gia đình.
Nhiều người từng nghĩ biệt thự phải thật lớn mới thể hiện đẳng cấp. Nhưng qua thời gian, họ nhận ra rằng: sự sang trọng thực sự nằm ở cách sống, không phải kích thước căn nhà. Một biệt thự cao tầng đẹp được thiết kế hợp lý giúp tiết kiệm chi phí, dễ bảo trì và mang lại sự thoải mái bền lâu. Đó mới là giá trị thực mà người hiện đại tìm kiếm.
HT-Home Việt Nam – Nâng tầm giá trị sống hiện đại
Nếu bạn đang tìm kiếm một thiết kế biệt thự hiện đại tinh tế và tối ưu chi phí, HT-Home Việt Nam chính là lựa chọn lý tưởng. Hãy để chúng tôi đồng hành cùng bạn, kiến tạo nên một biệt thự 3 tầng sang trọng – vừa đẹp, vừa đáng sống.

















