Với nhiều gia đình, việc xây biệt thự thường kéo dài và tốn kém hơn dự kiến. Nhưng công trình biệt thự mái Nhật sang này là một câu chuyện khác. Chỉ trong bốn tháng, HT-Home Việt Nam đã hoàn thiện ngôi nhà 70m² đầy đủ tiện nghi và thẩm mỹ. Sự kết hợp giữa phong cách hiện đại và mái Nhật thanh thoát giúp công trình vừa sang trọng, vừa gần gũi.

Ngoại thất thanh lịch, tinh giản mà vẫn đẳng cấp
Mẫu biệt thự mái Nhật sang gây ấn tượng từ cái nhìn đầu tiên nhờ bố cục vuông vắn, khỏe khoắn. Hệ mái Nhật dốc nhẹ, mở rộng sang hai bên giúp ngôi nhà trở nên cân đối và vững vàng.

Gam màu trắng tinh kết hợp xám nhạt và xanh than của mái tạo nên tổng thể hài hòa, thanh lịch. Phần tường tầng trệt được ốp đá granite chống bám bẩn, mang lại vẻ bền bỉ và sạch sẽ.

Cửa chính bằng gỗ tự nhiên, khung kính trong suốt tạo cảm giác mở rộng không gian. Ban công tầng hai sử dụng lan can kính cường lực, giúp mặt tiền thêm sang trọng và hiện đại. Hệ mái Nhật nhiều lớp không chỉ mang tính thẩm mỹ mà còn giúp chống nóng, thoát nước tốt trong mọi điều kiện thời tiết. Nhìn từ xa, biệt thự toát lên vẻ yên bình nhưng vẫn sang trọng, đúng tinh thần của mẫu biệt thự mái Nhật chuẩn xu hướng.

Không gian sân trước được lát đá xám sáng, kết hợp bồn cây nhỏ hai bên lối vào. Cổng nhà bằng thép sơn tĩnh điện đồng màu mái, vừa chắc chắn vừa đồng nhất thẩm mỹ.

Tổng thể mang đến cảm giác thanh thoát, nhẹ nhàng nhưng vẫn thể hiện rõ gu sống tinh tế của gia chủ.

Công năng tiện nghi – Thiết kế cho cuộc sống an nhiên
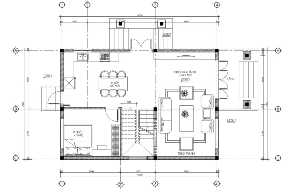
Diện tích 70m² được HT-Home bố trí công năng hợp lý và khoa học. Tầng một gồm sảnh chính, phòng khách, bếp ăn và một phòng ngủ. Không gian phòng khách rộng, kết nối bếp và bàn ăn liền mạch. Điều này tạo cảm giác gắn kết cho các thành viên. Cửa kính lớn phía trước giúp đón sáng, thông gió tự nhiên và mở rộng không gian.

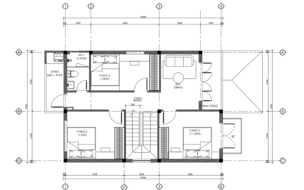
Tầng hai là khu sinh hoạt riêng gồm ba phòng ngủ, khu vệ sinh và khu giặt phơi. Mỗi phòng ngủ đều có cửa sổ hướng ra ngoài, đảm bảo thoáng khí và ánh sáng. Khu sinh hoạt chung được đặt ở giữa tầng. Nơi cả gia đình có thể trò chuyện hoặc thư giãn. Cách bố trí này giúp tối ưu diện tích và mang đến cảm giác tiện nghi trong sinh hoạt.

Dù diện tích không lớn, nhưng từng không gian trong biệt thự mái Nhật sang đều được chăm chút tỉ mỉ. Sự kết hợp hài hòa giữa ánh sáng, vật liệu và màu sắc mang lại cảm giác ấm cúng và thoải mái. Đây là điểm đặc biệt khiến mẫu biệt thự phù hợp với cả gia đình trẻ lẫn người lớn tuổi.
Điều khiến biệt thự mái Nhật sang được yêu thích nằm ở khả năng dung hòa giữa cũ và mới. Mái Nhật đặc trưng Á Đông giữ vẻ nhẹ nhàng, hiền hòa nhưng được phối hợp theo tỷ lệ chuẩn hiện đại. Phong cách này vừa tiết kiệm chi phí, vừa giúp ngôi nhà nổi bật mà không cần cầu kỳ.
HT-Home Việt Nam – Đơn vị đồng hành cùng tổ ấm Việt
HT-Home Việt Nam luôn hướng đến những công trình mang giá trị thực và cảm xúc thật. Chúng tôi hiểu rằng mỗi biệt thự mái Nhật sang không chỉ là nơi ở, mà là giấc mơ. Từ thiết kế, thi công đến bàn giao, mọi chi tiết đều được giám sát chặt chẽ để đạt độ hoàn thiện cao nhất.
Nếu bạn đang tìm kiếm một thiết kế biệt thự hiện đại đẹp, sang trọng và hợp túi tiền, HT-Home Việt Nam sẵn sàng đồng hành. Liên hệ ngay hôm nay để được tư vấn chi tiết và nhận báo giá ưu đãi.
















