Nhiều gia chủ lo ngại việc thi công vượt ngân sách, nhưng với HT-Home, giá nhà mái Nhật trọn gói được tính minh bạch ngay từ đầu. Tất cả vật tư, phần thô và hoàn thiện đều có bảng báo giá chi tiết. Bạn có thể lựa chọn gói cơ bản, khá hoặc cao cấp, tùy theo nhu cầu và tài chính.

Không Gian Ngoại Thất Sang Trọng – Bền Vững Theo Thời Gian
Ngôi nhà mái Nhật hiện đại gây ấn tượng bởi dáng mái xanh ghi dốc nhẹ, trải đều bốn hướng. Tỷ lệ mái và thân nhà được tính toán cân đối, tạo tổng thể hài hòa và vững chãi. Tông màu trắng kem kết hợp ghi xám mang lại cảm giác trang nhã và hiện đại.

Cửa chính gỗ tự nhiên kết hợp kính trong giúp ánh sáng tràn ngập không gian. Khung cửa sổ nhôm kính đen nổi bật trên nền tường trắng, vừa sang trọng vừa dễ vệ sinh. Ban công tầng hai sử dụng lan can kính trong suốt, mở rộng tầm nhìn và tạo cảm giác thoáng đãng.

Sân lát gạch chống trơn màu xám sáng, vừa sạch vừa phù hợp khí hậu Việt Nam. Cổng thép sơn tĩnh điện đồng màu mái đảm bảo sự đồng bộ và bền vững. Bao quanh là hàng rào trắng thanh thoát, tạo điểm nhấn tinh tế cho không gian tổng thể.

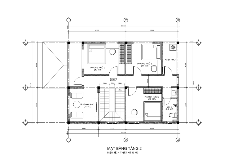
Bố Trí Công Năng Hợp Lý – Tiện Nghi Trong Từng Mét Vuông
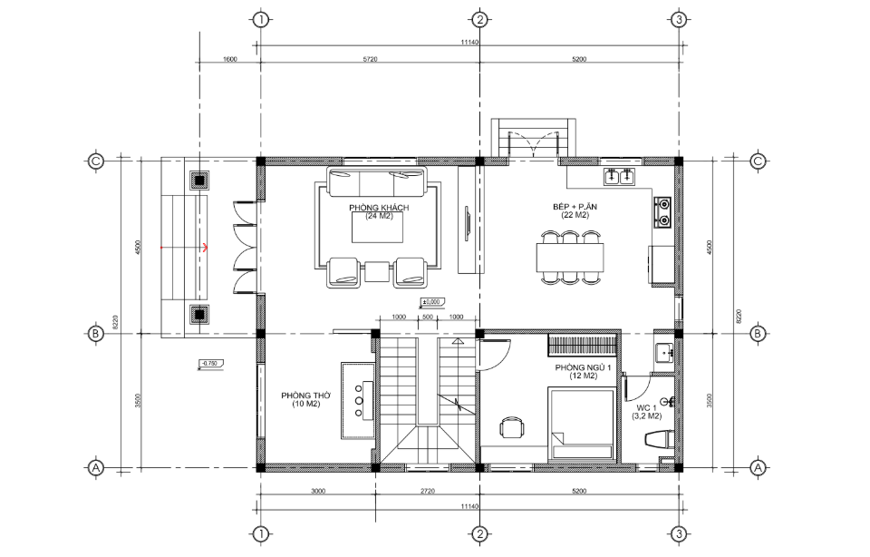
Công trình giá nhà mái Nhật trọn gói này có diện tích xây dựng 92m², được thiết kế 2 tầng hiện đại. Tầng một gồm sảnh chính, phòng khách, phòng bếp ăn, một phòng ngủ và phòng thờ. Không gian mở giúp các khu vực sinh hoạt liên kết tự nhiên, thuận tiện cho cả gia đình.

Phòng khách thoáng rộng, có cửa lớn hướng ra sân trước. Bếp ăn liền kề, có cửa phụ thông ra sân sau, vừa thoáng vừa sạch sẽ. Phòng ngủ ở tầng một phù hợp cho người lớn tuổi, không cần leo cầu thang. Phòng thờ được đặt phía trước, vừa trang trọng vừa hợp phong thủy.

Tầng hai gồm phòng sinh hoạt chung và ba phòng ngủ tiện nghi. Khu vệ sinh đặt cuối hành lang giúp không gian riêng tư và gọn gàng. Mỗi phòng đều có cửa sổ lớn hướng sáng, đảm bảo thông thoáng tự nhiên. Ban công trước tạo góc thư giãn, nơi gia chủ có thể ngắm bình minh hay hoàng hôn mỗi ngày.

Chi phí tổng thể được tính trên diện tích xây dựng, vật liệu và phong cách hoàn thiện. Với mẫu nhà 92m² này, mức giá trọn gói hoàn thiện chỉ từ mức hợp lý, giúp khách hàng dễ dự toán. Sự rõ ràng trong từng hạng mục giúp tránh phát sinh, giữ đúng tiến độ và chất lượng.
Không chỉ tối ưu chi phí, giá nhà mái Nhật trọn gói còn giúp bạn an tâm trong quá trình xây dựng. Mọi khâu từ thiết kế, thi công đến bàn giao đều được HT-Home Việt Nam giám sát nghiêm ngặt. Đó là lý do hàng trăm khách hàng tin tưởng lựa chọn HT-Home Việt Nam mỗi năm.
Nếu bạn đang tìm kiếm một thiết kế mái Nhật đẹp với chi phí hợp lý, hãy để HT-Home đồng hành cùng bạn.













