Trong bối cảnh giá vật liệu leo thang, nhiều gia chủ vẫn đang loay hoay tìm giải pháp xây dựng nhà phố giá rẻ mà vẫn đảm bảo công năng, thẩm mỹ và độ bền. HT-Home Việt Nam xin giới thiệu một mẫu nhà phố 3 tầng – lựa chọn lý tưởng cho những gia đình trẻ, tài chính vừa phải, yêu thích sự tiện nghi và hiện đại.

Ngoại thất hiện đại – Tối giản mà tinh tế
Tổng thể ngôi nhà nổi bật với phong cách hiện đại, sử dụng tone trắng chủ đạo kết hợp các mảng tường ốp gạch inax chống bám bẩn. Mặt tiền rộng 5m được bố trí ban công tầng 2 và tầng 3 hợp lý, sử dụng lan can kính cường lực vừa sang trọng vừa thông thoáng.

Hệ cửa chính và cửa sổ nhôm kính Xingfa giúp tối ưu ánh sáng, tăng tính kết nối giữa không gian trong – ngoài.

Trần tầng 1 ốp nhựa giả gỗ chống ẩm, chống nóng, tăng thêm điểm nhấn cho mặt đứng.
Phần mái bằng hiện đại giúp công trình tiết kiệm chi phí thi công, tăng khả năng chống thấm và linh hoạt trong sử dụng sân thượng.

Công năng hợp lý – Tối ưu từng mét vuông cho gia đình hiện đại
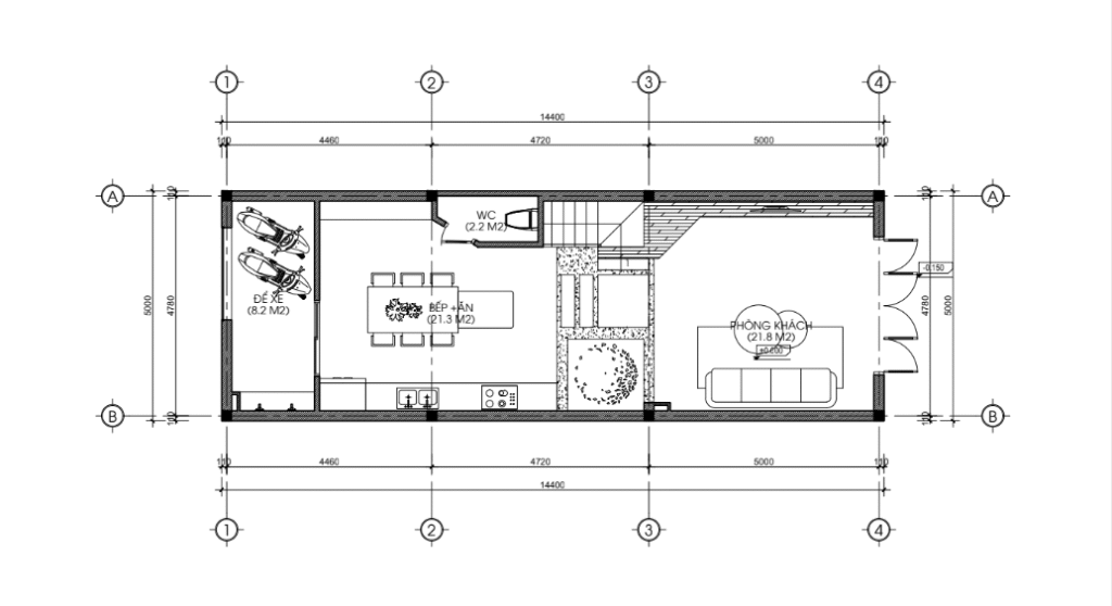
Tầng 1:
Tầng trệt được thiết kế khoa học với khu vực để xe rộng rãi, đủ cho xe máy và các phương tiện cá nhân. Bước vào là phòng khách rộng rãi, liên thông với khu bếp – ăn gọn gàng. Một khu vệ sinh chung được bố trí cuối nhà, kín đáo, đảm bảo sự riêng tư.


Tầng 2:
Lên đến tầng 2 là khu vực thông tầng tạo giếng trời giúp đối lưu không khí và đưa ánh sáng tự nhiên vào giữa nhà. Hai phòng ngủ được sắp xếp đối xứng, mỗi phòng đều có cửa sổ lớn đón sáng, đủ diện tích kê giường, tủ và bàn học/làm việc. Một nhà vệ sinh chung phục vụ cả tầng.

Tầng 3:
Bao gồm một phòng ngủ phụ, thích hợp làm phòng cho khách hoặc phòng làm việc. Khu giặt phơi rộng rãi phía sau kết hợp sân phơi có mái che, thuận tiện sử dụng. Cuối cùng là một phòng thờ trang nghiêm, yên tĩnh, đặt ở vị trí cao nhất thể hiện sự tôn kính tổ tiên.

Với chi phí chỉ hơn 1 tỷ đồng, mẫu thiết kế này đã giúp hàng trăm gia đình hiện thực hóa giấc mơ an cư tại thành thị. Giải pháp xây dựng nhà phố giá rẻ không đồng nghĩa với rẻ tiền – mà là tối ưu chi phí, chất lượng và trải nghiệm sống.
👉 HT-Home Việt Nam – Đơn vị tiên phong trong giải pháp xây dựng nhà phố giá rẻ, thi công trọn gói – minh bạch – đúng tiến độ.
















