Nhiều gia chủ tìm mẫu nhà hiện đại 2 tầng vì mong muốn có không gian đẹp, thoáng và đủ công năng cho gia đình 4–6 người. Công trình dưới đây là một lựa chọn phù hợp với nhu cầu thực tế, đảm bảo sự tiện nghi, thẩm mỹ và chi phí hợp lý. Mẫu nhà sở hữu thiết kế hiện đại, bố trí thông minh và trải nghiệm sống thoải mái mỗi ngày.

Ngoại thất nhà hiện đại 2 tầng – Đường nét gọn, sang và thoáng
Ngoại thất công trình sử dụng hình khối vuông vắn, tạo phong thái mạnh mẽ và sang trọng. Mặt tiền dùng lam gỗ nhấn mạnh phong cách của nhà hiện đại 2 tầng, giúp công trình nổi bật và ấm áp hơn. Tầng 1 ốp đá màu tối, tăng sự vững chãi và tạo cảm giác cao ráo. Tầng 2 có ban công kính giúp ánh sáng vào nhà tốt hơn.

Mái bằng kết hợp bố trí khu kỹ thuật gọn gàng, tăng tính thực dụng. Mảng tường bê tông điểm cây xanh tạo cảm giác hài hòa. Tổng thể mang lại vẻ đẹp hiện đại, trẻ trung và hợp xu hướng thiết kế hiện nay.

Công trình có thiết kế đẹp, chi phí hợp lý và tối ưu diện tích đất. Tỷ lệ hình khối cân bằng. Màu sắc hài hòa. Công năng đáp ứng đầy đủ nhu cầu của gia đình trẻ. Mẫu nhà hiện đại 2 tầng này phù hợp nhiều khu đất khác nhau, dễ thi công và tính ổn định cao.

Nội thất và công năng – Bố trí theo từng tầng, mạch lạc và tiện dụng
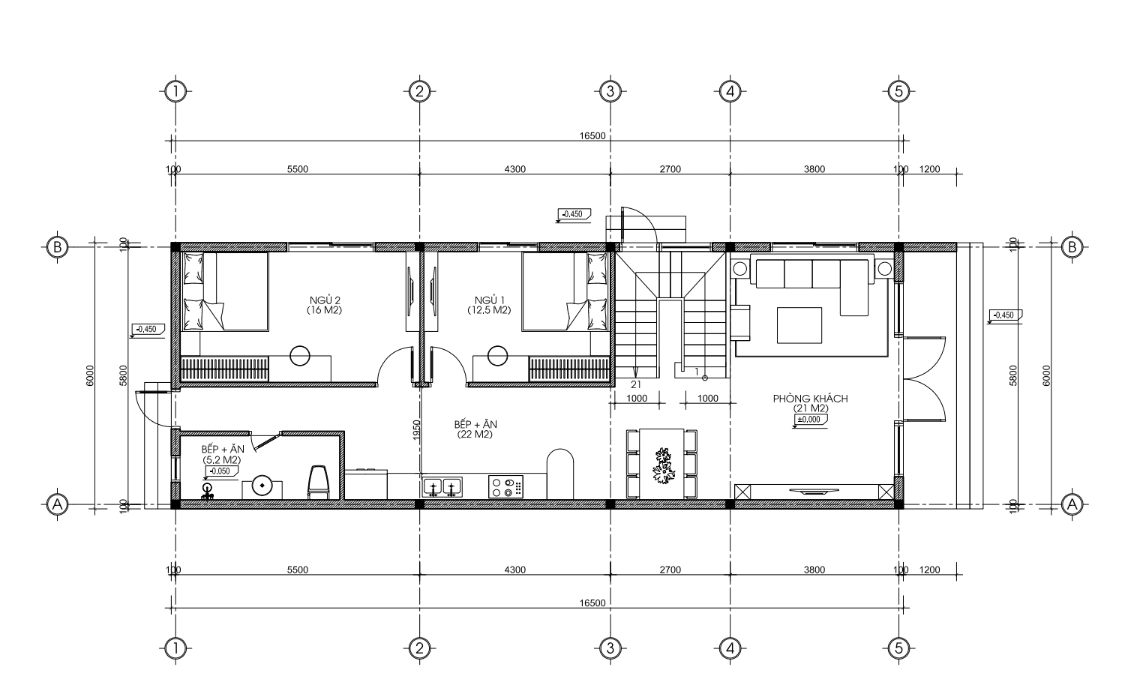
Tầng 1 – Không gian sinh hoạt chung và hai phòng ngủ
Tầng 1 gồm phòng khách với cửa kính rộng giúp không gian thoáng. Khu bếp + ăn nối liền nhưng vẫn gọn gàng. Ánh sáng đi xuyên suốt, tạo cảm giác mở. Hai phòng ngủ được đặt hợp lý để gia chủ lớn tuổi di chuyển dễ dàng. WC chung ở vị trí thuận tiện cho cả tầng. Bố trí này giúp hoạt động hàng ngày diễn ra mượt mà và logic.

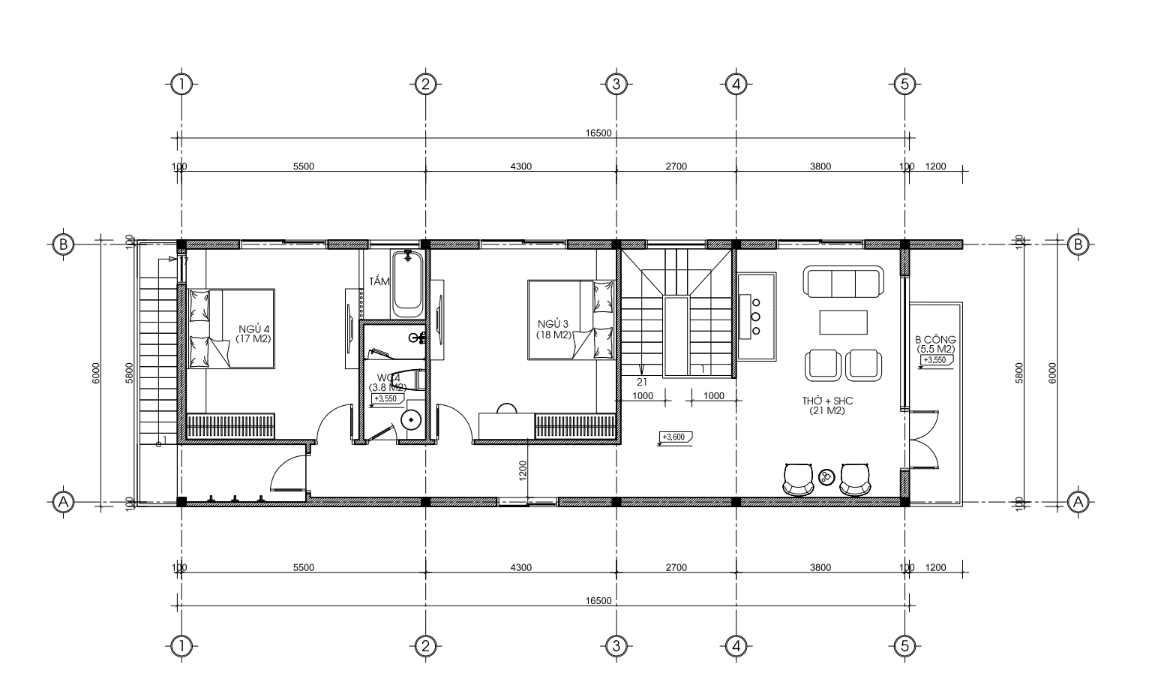
Tầng 2 – Không gian riêng tư và các khu chức năng quan trọng
Tầng 2 có hai phòng ngủ với diện tích đủ cho sinh hoạt. Các phòng đều lấy sáng tốt. WC chung đặt ở giữa để dễ dùng. Khu phơi nằm ở vị trí kín đáo nhưng đón nắng. Phòng thờ đặt riêng, tạo sự trang nghiêm. Khu sinh hoạt chung nằm giữa tầng, giúp gia đình kết nối mỗi tối. Đây là ưu điểm lớn của mẫu nhà hiện đại 2 tầng, vì công năng rõ và phù hợp nhiều nhu cầu.

HT-Home Việt Nam triển khai trọn gói với quy trình rõ ràng. Đội ngũ hỗ trợ gia chủ từ bước khảo sát đến thi công. Chất lượng luôn được kiểm soát. Mỗi công trình đều được cập nhật tiến độ minh bạch. Các mẫu nhà hiện đại 2 tầng luôn bảo đảm đúng nhu cầu và tiêu chuẩn kỹ thuật.

Mẫu nhà hiện đại 2 tầng 100m2 mang lại không gian sống đầy đủ và thoải mái cho gia đình Việt. Nếu bạn cần một ngôi nhà đẹp, chuẩn công năng và chi phí hợp lý, HT-Home Việt Nam luôn sẵn sàng đồng hành.
Liên hệ HT-Home Việt Nam để nhận tư vấn và báo giá chi tiết
















