Nhiều gia chủ yêu thích sự phóng khoáng thường tìm kiếm một nhà mái bằng hiện đại vừa đẹp, vừa có sân vườn rộng. Nhưng họ lại lo rằng thiết kế mái bằng dễ bị đơn điệu và thiếu điểm nhấn. Công trình 120m2 này giải quyết hoàn toàn nỗi lo đó. Ngoại thất sắc nét, khối kiến trúc mạnh mẽ và công năng rộng khiến ngôi nhà trở thành một điểm nhấn khác biệt.

Ngoại thất nhà mái bằng hiện đại – Khối kiến trúc khỏe, sân vườn đẹp và mặt tiền cuốn hút
Tổng thể công trình được xây trên khuôn đất thoáng nên sân vườn được bố trí rất hợp lý. Mảng xanh trước nhà tạo cảm giác thư thái. Đường dạo và tiểu cảnh hài hòa với sở thích yêu thiên nhiên của gia chủ.
Khu cổng dùng dạng thép hiện đại kết hợp mảng tường ốp gạch màu sáng. Cổng chia hai lớp, một bên là cửa chính, một bên là cửa xe rộng. Đây là lựa chọn phù hợp với công trình nhà mái bằng hiện đại.

Cửa chính sử dụng kính lớn khung nhôm. Ánh sáng tự nhiên vào nhiều. Cửa phụ ở hông nhà kết nối với khu bếp. Toàn bộ hệ cửa tạo sự thoáng cho không gian bên trong.
Ban công tầng hai chạy dài, có lan can kính và bồn cây xanh. Phần ban công mở rộng hơn so với các mẫu thông thường. Điều này sinh ra không gian thư giãn tuyệt đẹp. Ban công tầng một kết hợp mái hiên gỗ tạo điểm nhấn ấm áp.

Màu sắc tổng thể gồm trắng, nâu và đen. Tông trắng làm chủ đạo. Nâu của lam và mái hiên tạo cảm giác sang. Khối màu đen của cửa kính giúp công trình sắc nét hơn. Đây là bảng màu được dùng nhiều trong các mẫu nhà mái bằng hiện đại.
Mái bằng được thiết kế phẳng, tối giản và có thêm khu kỹ thuật phía sau. Phương án mái giật nhẹ giúp tạo bóng đổ đẹp. Phần sân mái rộng cũng là điểm đặc biệt của căn nhà. Khu BBQ có thể bố trí dễ dàng.

Điểm đặc biệt nhất nằm ở khối hiên lớn ở tầng một. Hệ cột lớn kết hợp mảng kính toàn mặt tiền tạo cảm giác “villa phố”. Đây là phương án mới giúp mẫu nhà đẹp hơn và sang hơn hẳn.

Nội thất – Liền mạch theo tầng và tối ưu cho gia đình đông thành viên
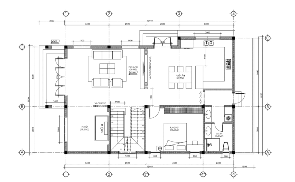
Tầng một gồm phòng khách rộng, phòng bếp + ăn, một phòng ngủ, phòng thờ và khu WC. Phòng khách sáng mạnh nhờ cửa kính lớn. Bếp rộng và kết nối với cửa hông để thông gió. Phòng ngủ tầng một phù hợp cho người lớn tuổi. Phòng thờ đặt riêng và có hướng tốt.

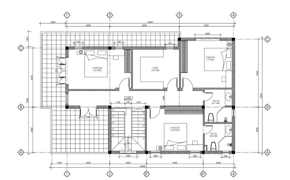
Tầng hai gồm ba phòng ngủ, khu phơi và WC. Ba phòng ngủ bố trí theo hai bên hành lang. Cửa sổ lớn giúp không gian thoáng. Phòng ngủ phía trước có ban công lớn, là phòng đẹp nhất tầng này. Khu phơi đặt sau cùng, không ảnh hưởng thẩm mỹ.
Nội thất được thiết kế liền mạch. Lối di chuyển rõ ràng. Công năng đáp ứng tốt nhu cầu gia đình đông người.

Ngôi nhà phù hợp các gia đình 4–6 người. Công năng đầy đủ. Sân vườn đẹp. Ngoại thất hiện đại và bền vững. Đây là lựa chọn lý tưởng cho người thích nhà mái bằng hiện đại.

HT-Home Việt Nam – Đơn vị thiết kế và thi công uy tín
HT-Home Việt Nam mang đến giải pháp tối ưu từ bản vẽ đến hoàn thiện. Các công trình nhà mái bằng hiện đại được HT-Home triển khai luôn đạt tính thẩm mỹ và độ bền cao.
Nếu bạn đang cần một nhà mái bằng hiện đại đẹp, thoáng và có công năng lớn, mẫu 120m2 này là lựa chọn rất đáng tham khảo.
Liên hệ HT-Home Việt Nam để nhận tư vấn chi tiết và báo giá phù hợp.




















