HT-Home Việt Nam định hướng tạo ra một mẫu nhà tối ưu cho khách hàng muốn mái nhật đẹp rẻ nhưng vẫn sang trọng. Nhiều gia chủ thích mái Nhật vì tính bền, đẹp và hợp phong thủy. Tuy nhiên chi phí thường là điều họ cân nhắc nhiều nhất.

HT-Home giải bài toán đó bằng cách tối giản hình khối và chọn vật liệu hợp lý. Công trình 120m² vì thế cân bằng giữa chi phí và thẩm mỹ. Đây là thiết kế đại diện cho nhóm mẫu mái nhật đẹp rẻ trong năm nay.

Ngoại thất – Kiến trúc cân đối, sang và tiết kiệm
Ngoại thất giữ phong cách hiện đại pha tân cổ. Cổng chính dùng khung thép sơn giả gỗ tạo cảm giác chắc chắn. Sảnh trước nổi bật với hai cột lớn nâng hệ mái. Cửa chính gỗ tự nhiên giúp tổng thể thêm sang trọng. Cửa sổ nhôm kính màu tối tạo điểm nhấn tinh tế.

Màu sơn trắng kết hợp đá chân tường tạo sự sạch sẽ. Ban công trước rộng và thoáng với lan can kính. Các đường phào chạy ngang giúp mặt tiền bề thế. Mái Nhật được triển khai theo dạng đổ bê tông rồi lợp ngói. Kiểu mái này tạo cảm giác cân đối. Đây cũng là lý do nó được xem là giải pháp mái nhật đẹp rẻ. Tổng thể ngoại thất hài hòa và phù hợp nhiều vùng miền.

Phương án mới của công trình là mở rộng diện cửa để đón sáng tốt hơn. Nhờ vậy không gian trong nhà thoáng và giảm dùng điện ban ngày. Kiến trúc sư chọn các đường nét đơn giản để tiết kiệm chi phí thi công. Điều này thể hiện đúng tinh thần của mẫu nhà mái nhật đẹp rẻ mà gia chủ hướng tới.

Nội thất – Công năng hợp lý cho gia đình đông người
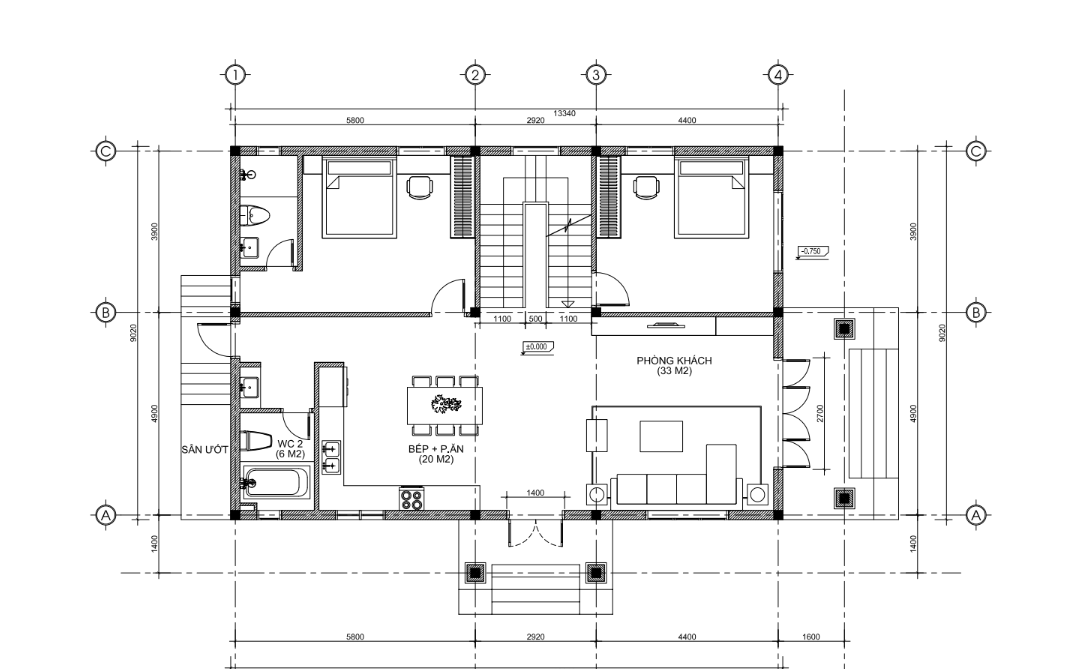
Tầng một bắt đầu bằng sảnh chính rộng. Phòng khách đặt ngay phía trước, kết nối trực tiếp bếp và bàn ăn. Không gian mở giúp sinh hoạt thuận tiện. Hai phòng ngủ ở tầng này phù hợp với gia đình có người lớn tuổi. WC đặt giữa hai phòng để dễ sử dụng.

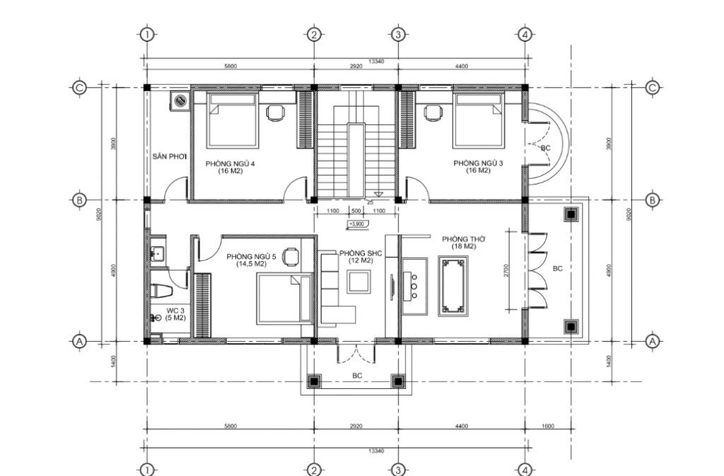
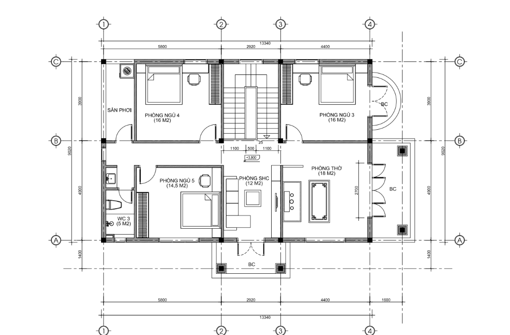
Tầng hai có ba phòng ngủ, thích hợp gia đình đông thành viên. Khu phơi đặt cuối để tránh ảnh hưởng thẩm mỹ. WC chung đặt giữa tầng nhằm tối ưu diện tích.

Phòng SHC nằm ở trung tâm để kết nối các phòng. Phòng thờ đặt hướng mặt tiền để đảm bảo phong thủy. Công năng này phù hợp gia đình từ sáu đến tám người.

Nội thất bên trong ưu tiên ánh sáng và thông gió. Cửa sổ lớn giúp phòng ngủ thoáng hơn. Không gian bếp và khách nối liền để tăng sự tiện dụng. Đây là cách HT-Home tối ưu nhà mái Nhật theo hướng tiết kiệm.
Tổng thể giá trị của căn nhà
Công trình 120m² là lựa chọn phù hợp cho gia chủ yêu thích mái nhật đẹp rẻ nhưng vẫn muốn sự bền vững. Ngoại thất sang, nội thất hợp lý và không gian sống thoáng. Thiết kế phù hợp nhiều loại đất và nhiều nhu cầu sử dụng.
Nếu bạn muốn sở hữu mẫu mái nhật đẹp rẻ với thiết kế tối ưu chi phí, HT-Home Việt Nam sẵn sàng đồng hành.
Liên hệ ngay HT-Home Việt Nam để nhận tư vấn và báo giá chi tiết.
















