Trong những năm gần đây, nhà gác lửng xu hướng trở thành lựa chọn phổ biến tại khu vực đô thị và ngoại thành. Mô hình này giúp tối ưu diện tích, giảm chi phí nhưng vẫn mang lại vẻ đẹp hiện đại. Với diện tích 90m², công trình do HT-Home Việt Nam thiết kế mang đậm tinh thần tối giản và thực tế. Mỗi chi tiết đều được cân nhắc kỹ để tạo nên không gian sống hài hòa và tiện nghi.

Ngoại thất tinh gọn, hiện đại và đầy sức sống
Công trình nhà gác lửng xu hướng gây ấn tượng bởi phong cách tối giản và tỉ lệ khối cân đối. Mặt tiền được phối giữa trắng sáng, gỗ nâu và mảng đen mạnh mẽ. Cửa chính bằng kính cường lực khung đen tạo cảm giác sang trọng, đồng thời mở rộng tầm nhìn

Ban công tầng lửng sử dụng kính trong suốt, điểm xuyết chậu cây xanh giúp không gian trở nên mềm mại.

Từ góc nhìn chính diện, ngôi nhà toát lên vẻ hiện đại và gần gũi. Phần tường ốp gạch tối màu ở tầng trệt tạo cảm giác vững chãi. Cổng thép sơn tĩnh điện kết hợp lam gỗ mang lại nét hài hòa, không quá khô cứng. Hệ mái bằng phủ sơn chống thấm giúp ngôi nhà thích nghi tốt với khí hậu Việt Nam, vừa bền vừa đẹp theo thời gian.

Sân trước lát đá granite xám, vừa sạch vừa hiện đại, đủ chỗ cho xe hoặc tiểu cảnh nhỏ. Bậc tam cấp được xử lý tinh tế tạo cảm giác ngăn nhẹ giữa trong và ngoài. Mỗi buổi sáng, ánh nắng phản chiếu qua kính, làm nổi bật vẻ tinh khôi của mặt tiền. Tổng thể nhà gác lửng xu hướng mang đậm dấu ấn hiện đại, gọn gàng và đầy năng lượng sống.

Công năng tiện nghi – Bố trí hợp lý cho diện tích 90m²
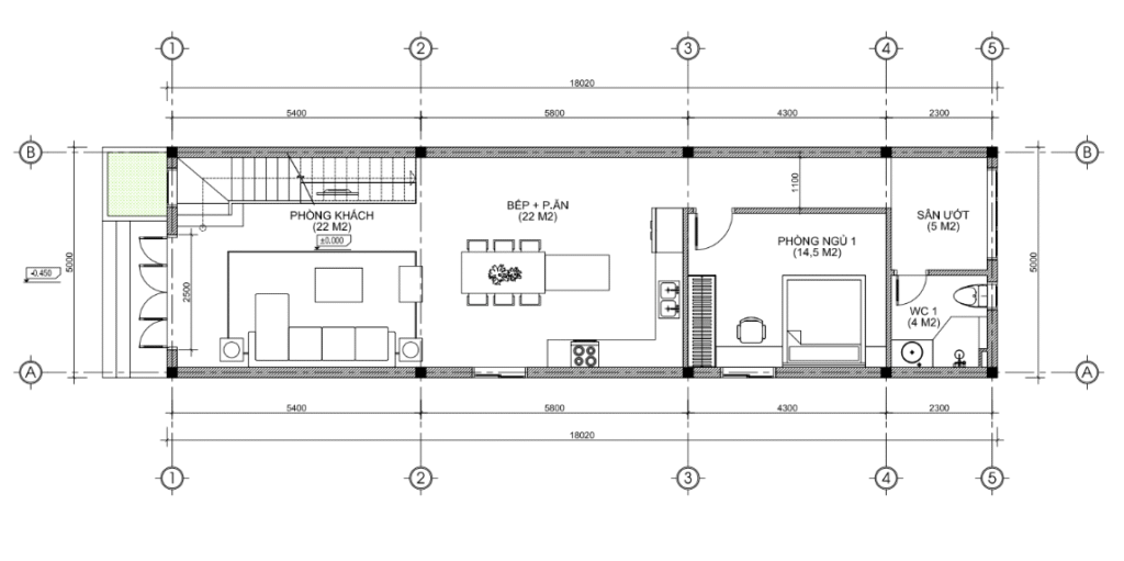
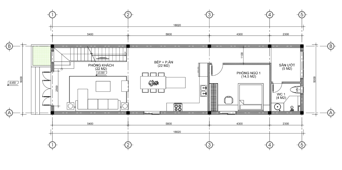
Với diện tích 90m², ngôi nhà được thiết kế khoa học, tận dụng tối đa không gian sử dụng. Tầng một gồm sảnh chính, phòng khách, bếp ăn và một phòng ngủ nhỏ. Không gian được kết nối mở giúp ánh sáng và gió lưu thông liên tục. Mỗi góc sinh hoạt đều được tính toán kỹ, tạo cảm giác rộng và thoáng.

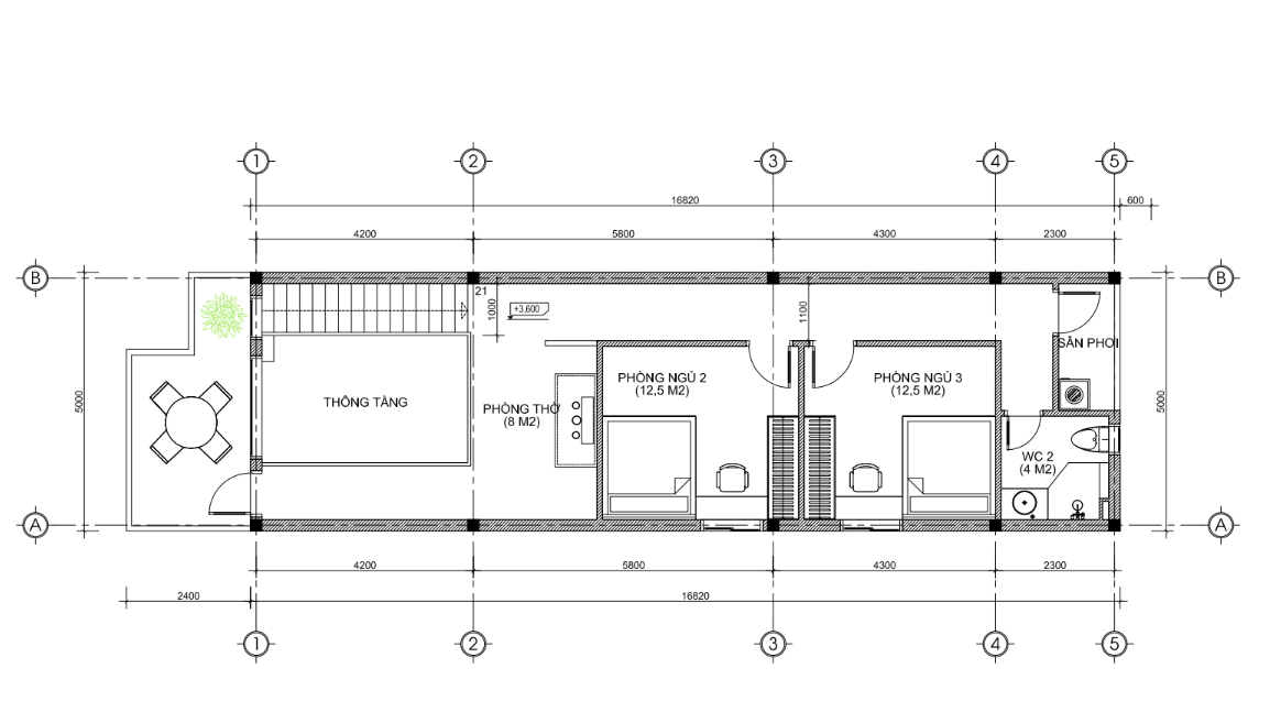
Phía sau là khu sân ướt và vệ sinh, bố trí hợp lý cho sinh hoạt hằng ngày. Vật liệu sàn giả gỗ và tường sơn sáng giúp không gian thêm ấm cúng. Cầu thang nhỏ gọn dẫn lên tầng lửng, nơi dành cho các không gian riêng tư hơn. Tầng trên bố trí hai phòng ngủ và phòng thờ, vừa tiện nghi vừa hợp phong thủy.

Phòng ngủ phía trước có ban công hướng sáng, lý tưởng cho gia chủ thích không khí tự nhiên. Phòng thờ được đặt tách biệt, yên tĩnh và trang nghiêm. Ánh sáng tự nhiên từ giếng trời giúp tầng lửng luôn thông thoáng và tiết kiệm điện. Cách bố trí này khiến nhà gác lửng xu hướng trở thành lựa chọn lý tưởng cho gia đình trẻ.
HT-Home Việt Nam – Đồng hành cùng xu hướng sống hiện đại
HT-Home Việt Nam luôn tiên phong trong thiết kế và thi công nhà gác lửng xu hướng trên toàn quốc. Mỗi dự án được thực hiện với quy trình chuyên nghiệp và tinh thần tận tâm. Đội ngũ kiến trúc sư chú trọng từng chi tiết để mang lại không gian sống đúng gu, đúng giá trị.
Nếu bạn đang tìm một mẫu nhà gác lửng xu hướng hiện đại, tiện nghi và tiết kiệm, HT-Home Việt Nam là lựa chọn đáng tin cậy. Hãy liên hệ với chúng tôi để được tư vấn thiết kế và thi công trọn gói.
















