Mẫu nhà phố 4 tầng hiện đại do HT-Home Việt Nam thiết kế mang đậm tinh thần kiến trúc đương đại – đơn giản, sang trọng và gần gũi. Với diện tích 80m², công trình là lựa chọn lý tưởng cho các gia đình yêu thích không gian sống tinh gọn nhưng vẫn đảm bảo đầy đủ tiện ích, ánh sáng và tính thẩm mỹ.

Nhà Phố 4 Tầng Hiện Đại – Tinh Tế Từ Cổng Đến Mái Tum

Mẫu nhà phố 4 tầng hiện đại này được thiết kế theo phong cách tối giản nhưng tinh tế trong từng đường nét. Mặt tiền là sự kết hợp hài hòa giữa gam trắng kem nhẹ và nâu gỗ ấm áp. Hệ cửa kính cường lực khung đen giúp ngôi nhà luôn sáng và thoáng. Ban công kính trong suốt kết hợp cây xanh mang đến cảm giác tươi mát giữa lòng phố

Từ cổng đến mái tum, mọi chi tiết đều thể hiện sự đầu tư chỉn chu của gia chủ. Cổng sắt đen viền gỗ nhẹ tạo điểm nhấn sang trọng cho phần tiếp giáp đường. Phía trên, mảng tường được xử lý phẳng gọn, tạo cảm giác cao và thanh thoát hơn. Mái tum phẳng phủ lam bê tông giả gỗ vừa chắn nắng, vừa tăng thẩm mỹ tổng thể.

Không gian trước nhà lát đá xám nhạt, vừa sạch vừa hiện đại. Từng mảng kính lớn phản chiếu ánh sáng giúp công trình nổi bật vào ban ngày và lung linh khi đêm xuống. Tone màu tổng thể giữ vẻ sang trọng nhưng không phô trương, phù hợp xu hướng kiến trúc đô thị mới.

Công năng hợp lý, tận dụng tối đa diện tích 80m2

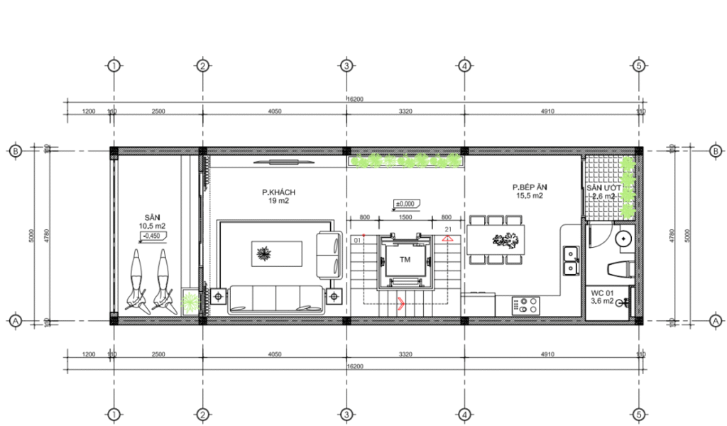
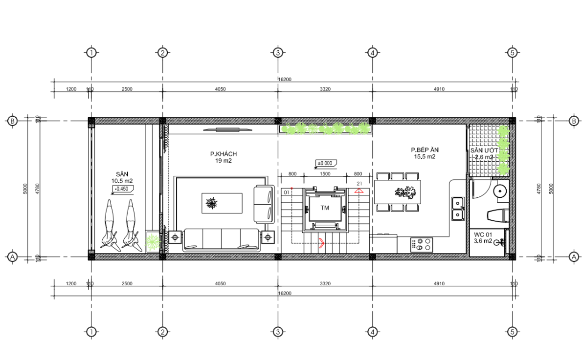
Với diện tích 80m2, ngôi nhà được bố trí công năng hợp lý, đảm bảo thoáng và riêng tư. Tầng một là không gian sinh hoạt chung với phòng khách liền bếp ăn. Ánh sáng tự nhiên tràn ngập qua cửa kính lớn, mang lại cảm giác mở rộng không gian. Sân trước nhỏ nhưng đủ để xe và tiểu cảnh, tạo điểm dừng nhẹ nhàng cho ngôi nhà.

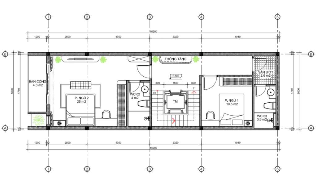
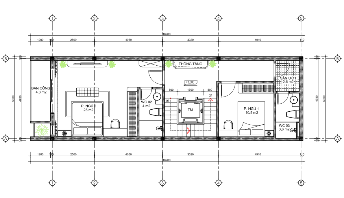
Lên tầng hai, không gian nghỉ ngơi được sắp xếp yên tĩnh và tiện nghi. Hai phòng ngủ có cửa sổ lớn, đón gió và ánh sáng tự nhiên. Tông màu nội thất trung tính giúp không gian thư giãn, cân bằng năng lượng sau ngày dài. Mỗi phòng đều có khu vệ sinh riêng, đảm bảo sự thuận tiện cho sinh hoạt gia đình.

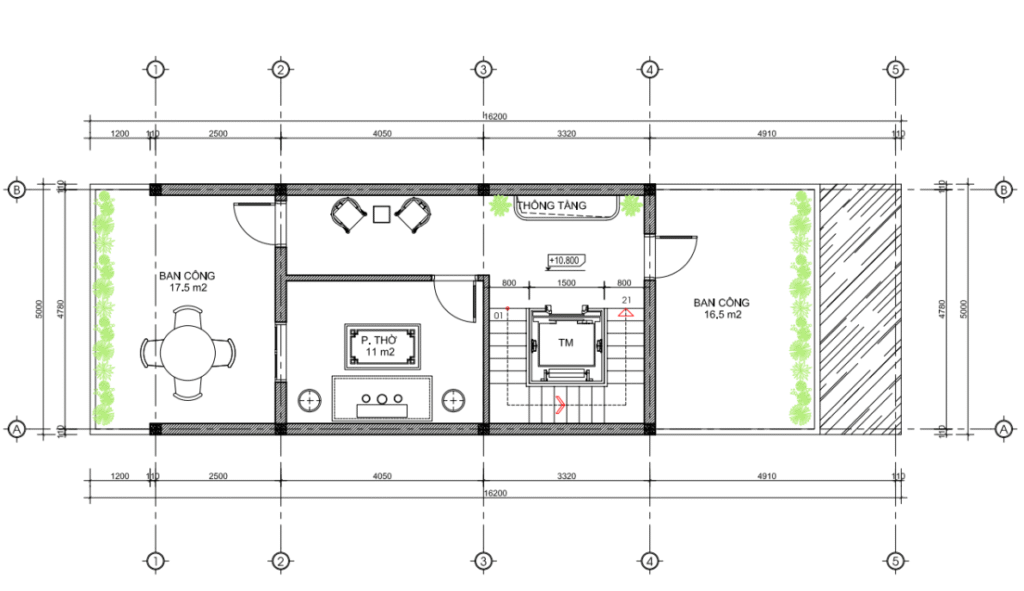
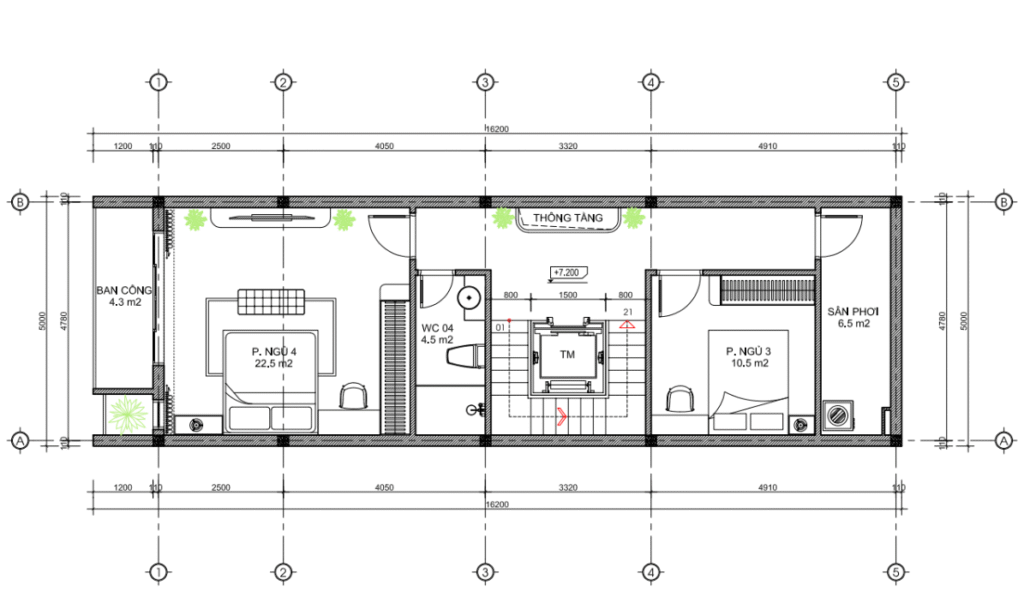
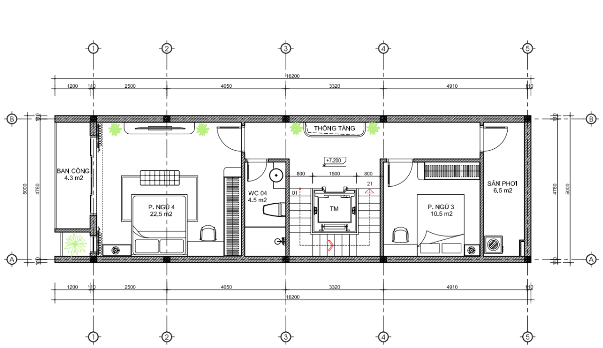
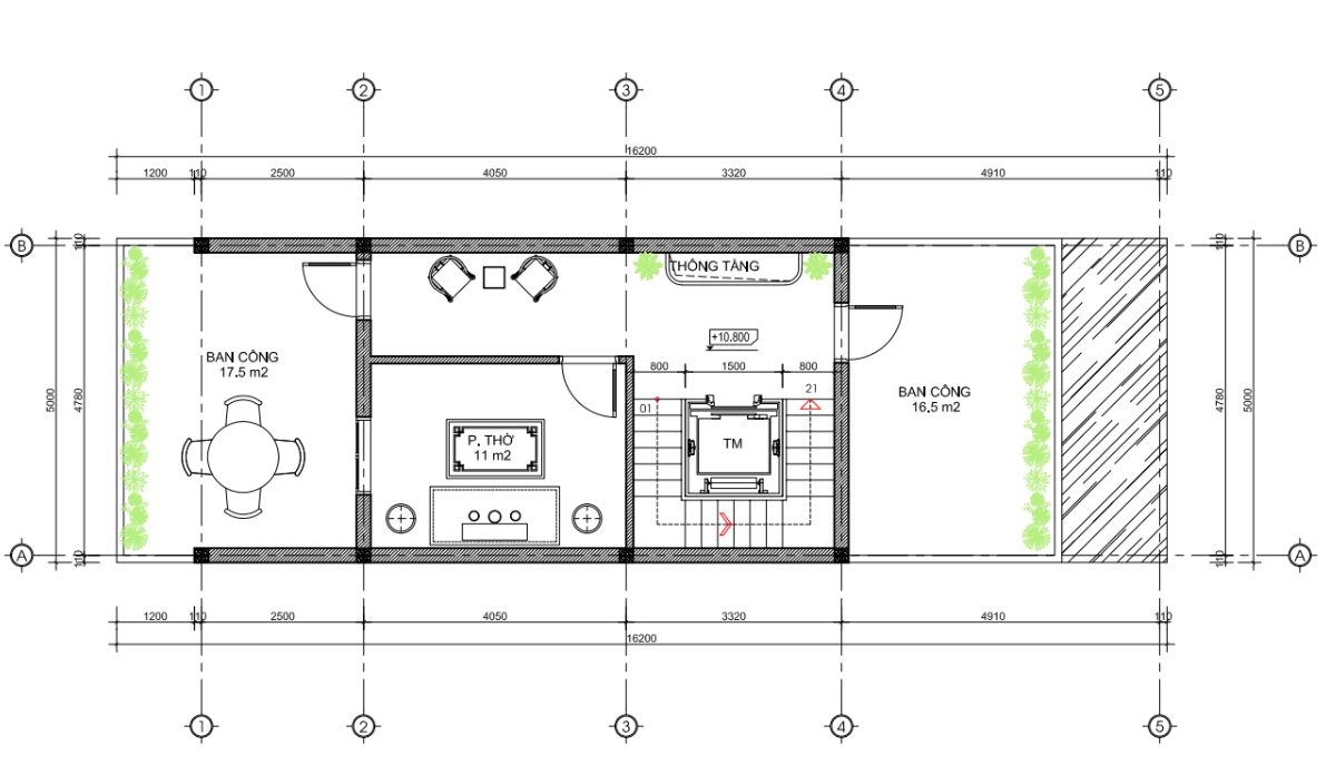
Tầng ba tiếp tục được bố trí hai phòng ngủ cùng khu giặt phơi thoáng gió. Khu vực này nhận ánh sáng từ giếng trời giữa nhà, giúp ngôi nhà luôn khô ráo và sáng sủa. Phần tum trên cùng được dành cho phòng thờ và ban công rộng. Đây là nơi gia chủ tận hưởng sự bình yên, ngắm nhìn thành phố mỗi sớm chiều.

Điều tạo nên khác biệt cho nhà phố 4 tầng hiện đại này là sự cân bằng giữa thẩm mỹ và công năng. Từng mảng tường được ốp gỗ nhựa ngoài trời vừa đẹp vừa chống thấm tốt. Lan can kính, cửa nhôm Xingfa, mái phẳng tối giản — tất cả đều gắn kết hài hòa. Mỗi tầng đều có khoảng xanh, giúp ngôi nhà thở cùng thiên nhiên.

Mẫu thiết kế nhà phố 4 tầng đẹp này là minh chứng cho phong cách làm việc ấy: chuẩn mực, tinh tế và thực tế. Nếu bạn đang tìm kiếm một nhà phố có tum hiện đại, thông thoáng và tiết kiệm chi phí, đây chính là lựa chọn lý tưởng. Liên hệ HT-Home Việt Nam để được tư vấn chi tiết và hiện thực hóa ngôi nhà mơ ước.


















