Trong bối cảnh đô thị chật hẹp, việc sở hữu một nhà phố mặt tiền 7m là lợi thế lớn. Không gian vừa đủ để kiến trúc sư sáng tạo, vừa đảm bảo tính thẩm mỹ và riêng tư. Công trình 90m² do HT-Home Việt Nam thực hiện hoàn thiện sau 5 tháng thi công. Ngôi nhà không chỉ nổi bật bởi kiến trúc mà còn ghi điểm nhờ cách bố trí không gian sống khoa học và tinh tế.

Ngoại thất hiện đại – khi chiều ngang 7m trở thành lợi thế
Công trình nhà phố mặt tiền 7m được thiết kế theo phong cách hiện đại, lấy sự tối giản làm chủ đạo. Mặt tiền nổi bật với gam trắng tinh khiết kết hợp mảng ốp gỗ nhấn ở ban công tầng hai.

Cửa chính kính khung nhôm đen vừa sang trọng vừa giúp không gian bên trong luôn ngập tràn ánh sáng. Lan can kính trong suốt tạo hiệu ứng nhẹ nhàng, tôn lên vẻ thanh thoát của ngôi nhà.

Điểm nhấn nằm ở khối mái bằng kết hợp lam che nắng, vừa tạo hình khối mạnh mẽ, vừa đảm bảo công năng che mưa nắng. Mặt tiền rộng 7m cho phép bố trí cửa lớn hai cánh, giúp kết nối không gian trong – ngoài dễ dàng. Phía trước, khoảng sân nhỏ được lát gạch chống trơn, đủ cho xe ô tô và tiểu cảnh xanh. Hệ cổng sắt sơn tĩnh điện màu ghi xám đồng bộ với tổng thể, thể hiện phong cách tinh gọn.

Nhìn từ trên cao, ngôi nhà phố 3 tầng đẹp này khoe trọn đường nét cân đối, trẻ trung. Tầng thượng được tận dụng làm sân chơi và khu thư giãn, với mái pergola hiện đại và mảng xanh trang trí. Mỗi chi tiết đều được tính toán để vừa tiện dụng, vừa tăng tính thẩm mỹ cho tổng thể công trình.

Công năng tiện nghi – sắp xếp thông minh cho từng tầng
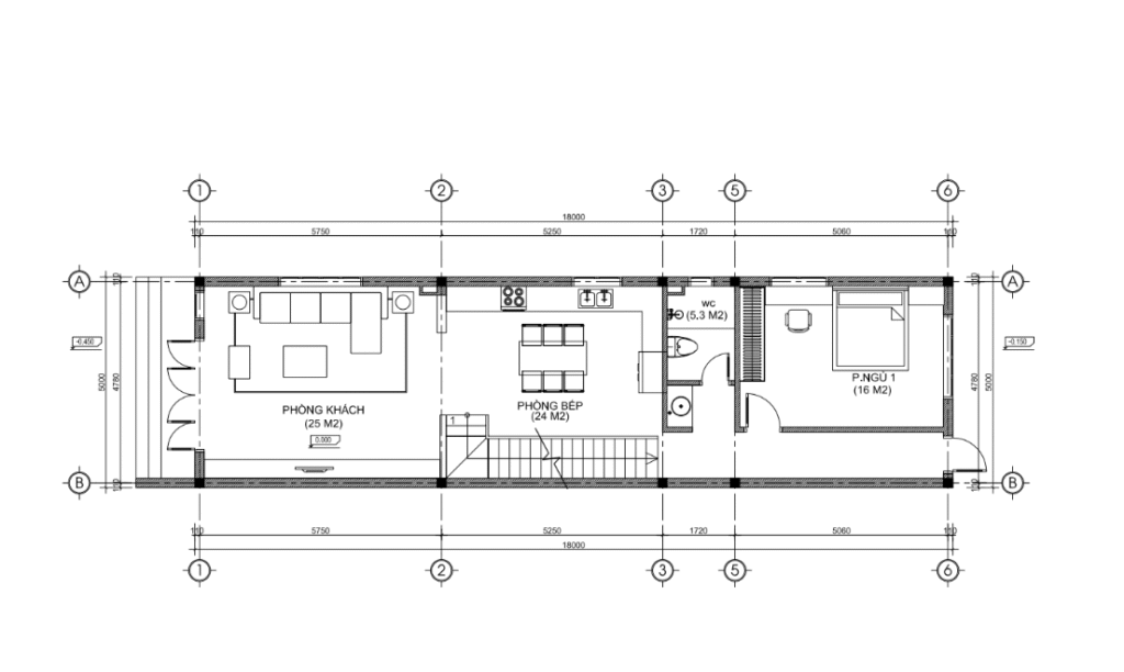
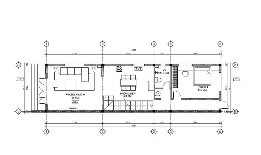
Không chỉ đẹp về hình thức, nhà phố mặt tiền 7m còn được bố trí công năng tối ưu cho nhu cầu sử dụng thực tế. Tầng một là không gian sinh hoạt chung với phòng khách, khu bếp và bàn ăn rộng rãi.

Cửa kính lớn giúp ánh sáng tự nhiên lan tỏa khắp căn phòng, tạo cảm giác thoáng đãng và sang trọng. Phòng ngủ nhỏ phía sau được thiết kế riêng tư, thích hợp cho người lớn tuổi hoặc khách lưu trú.

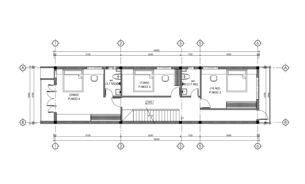
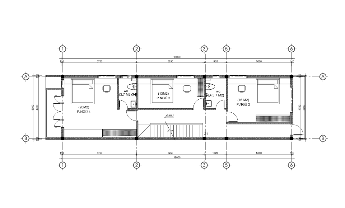
Lên tầng hai là khu vực nghỉ ngơi chính với ba phòng ngủ rộng thoáng, mỗi phòng đều có cửa sổ mở ra ban công. Ánh sáng và gió tự nhiên lưu thông giúp không khí trong nhà luôn dễ chịu. Hai khu vệ sinh được bố trí hợp lý, đảm bảo tiện lợi cho sinh hoạt hằng ngày. Không gian sinh hoạt chung ở giữa tầng là nơi gia đình cùng xem phim, đọc sách.

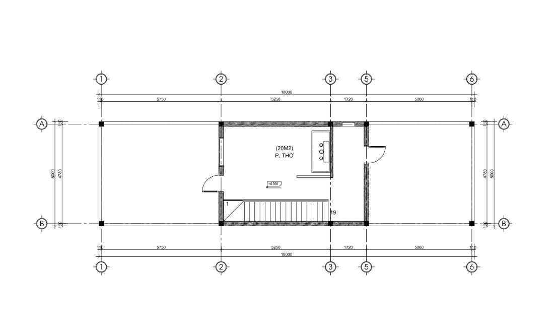
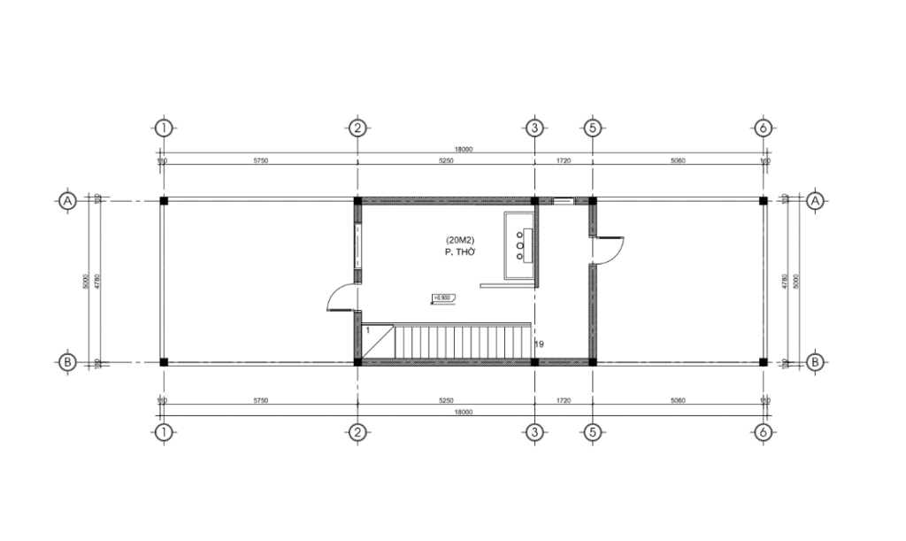
Tầng ba là nơi đặt phòng thờ trang trọng và ban công lớn hướng về mặt tiền. Khu vực sân thượng phía sau được sử dụng làm không gian giặt phơi, kết hợp tiểu cảnh nhỏ. Cách bố trí này vừa khoa học vừa giúp ngôi nhà luôn tràn đầy năng lượng tự nhiên.
Tận dụng từng mét vuông để tạo nên sự khác biệt
Điều làm nên sức hút của nhà phố mặt tiền 7m không chỉ ở vẻ ngoài hiện đại, mà còn khai thác không gian thông minh. Với chiều ngang vừa phải, ngôi nhà vẫn đảm bảo đủ ánh sáng, gió trời và công năng tiện nghi. Từng chi tiết – từ lam che nắng, cửa kính, đến tông màu chủ đạo – đều hướng đến sự hài hòa và bền vững.
HT-Home Việt Nam luôn đồng hành cùng khách hàng trong hành trình biến bản vẽ thành ngôi nhà mơ ước. Với đội ngũ kiến trúc sư chuyên nghiệp, chúng tôi mang đến những mẫu nhà phố mặt tiền 7m đẹp. Tối ưu chi phí và đáp ứng mọi nhu cầu. Mỗi công trình là sự kết hợp hoàn hảo giữa công năng, thẩm mỹ và phong thủy.
Nếu bạn đang tìm kiếm một mẫu nhà phố mặt tiền 7m hiện đại, tiện nghi và sang trọng. Liên hệ ngay để được tư vấn thiết kế – thi công trọn gói với chi phí hợp lý nhất.

















