Khi bắt tay vào lên ý tưởng thiết kế mái thái 1 tầng, HT-Home Việt Nam luôn hướng đến sự hài hòa giữa thẩm mỹ, công năng và cá tính riêng của gia chủ. Căn nhà dưới đây là ví dụ điển hình: không quá lớn nhưng đủ tinh tế, sang trọng và quan trọng nhất là đáp ứng đúng nhu cầu sống an yên của một gia đình trẻ.

Ngoại thất mái thái – Liền mạch, nổi bật và chuẩn tinh tế
HT-Home Việt Nam định hướng mẫu thiết kế mái thái 1 tầng theo phong cách sang trọng và bền vững. Cổng thép kết hợp lam gỗ tạo cảm giác chắc chắn và hiện đại. Tường rào sơn trắng kết hợp đá chân tường giúp công trình sạch và nổi bật. Sảnh chính sử dụng bậc tam cấp đá xám, tạo sự bề thế ngay mặt tiền.

Cửa chính gỗ kết hợp kính giúp không gian sáng và sang. Các ô cửa sổ nhôm Xingfa đen giúp lấy sáng tốt và tạo điểm nhấn mạnh. Màu sơn trắng chủ đạo kết hợp các đường chỉ đen giúp căn nhà cân đối hơn.

Mái thái giật cấp nhiều lớp là điểm nhấn quan trọng của công trình. Độ dốc mái lớn giúp căn nhà thoát nước tốt. Các chi tiết vòm nhỏ phía trước tạo nét mềm mại. Đây là phương án cải tiến HT-Home áp dụng trong dòng mái thái 2026.

Nhìn từ trên cao, mái xanh than nổi bật trên nền sân vườn rộng. Lối đi lát đá quanh nhà tạo sự thuận tiện khi di chuyển. Tổng thể ngoại thất hài hòa, chắc chắn và phù hợp khí hậu Việt Nam. Chính điều này giúp mẫu nhà trở thành gợi ý sáng giá trong nhóm thiết kế mái thái 1 tầng năm 2026.

Nội thất – Công năng liền mạch, tối ưu cho sinh hoạt
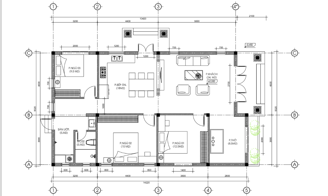
Không gian nội thất có bố cục đơn giản nhưng rất hợp lý. Sảnh chính dẫn vào phòng khách rộng và thoáng. Phòng khách dùng sofa lớn và cửa kính để lấy sáng tốt. Màu tường trung tính giúp tăng cảm giác sang trọng.

Phòng bếp và bàn ăn liên kết trực tiếp với phòng khách. Bếp chữ L rộng và nhiều tủ chứa đồ. Khe sáng bên hông giúp bếp thông thoáng và giảm mùi.
Ba phòng ngủ được sắp xếp khoa học để tạo riêng tư. Phòng ngủ master rộng và có hai cửa sổ lớn. Hai phòng ngủ còn lại phù hợp cho con nhỏ và người lớn tuổi. Tất cả đều có ánh sáng tự nhiên.

Phòng thờ đặt gần phòng khách và hướng mặt tiền. Không gian thờ trang trọng và tuân thủ phong thủy. Khu WC ở cuối nhà và có vách kính tách khu chức năng.
Toàn bộ nội thất tạo nên sự thoáng sáng và liền mạch. Đây là ưu điểm lớn của các mẫu thiết kế mái thái 1 tầng do HT-Home triển khai.
Kết luận – Liên hệ HT-Home Việt Nam
Mẫu thiết kế mái thái 1 tầng này đáp ứng tốt nhu cầu của gia đình 3–5 người. Ngoại thất sang trọng, nội thất tối ưu và công năng rất hợp lý.
Liên hệ HT-Home Việt Nam để nhận tư vấn và bản thiết kế chuẩn nhu cầu của gia đình bạn.















