Không phải ngẫu nhiên mà những công trình cổ điển luôn nằm trong danh sách yêu thích của giới thượng lưu. Vẻ đẹp của top biệt thự cổ điển đến từ sự chuẩn mực trong tỷ lệ, sự tinh tế trong chi tiết và cảm xúc vượt thời gian. Mỗi đường nét đều được thiết kế để truyền tải giá trị bền vững, chứ không chỉ là hình thức bên ngoài.

ông trình này của HT-Home Việt Nam là minh chứng rõ ràng. Với diện tích hơn 90m², biệt thự vẫn giữ được tinh thần cổ điển châu Âu mà không hề nặng nề. Sự phối hợp giữa mái Nhật thanh thoát và mặt tiền tân cổ điển tạo nên tổng thể hài hòa, sang trọng mà gần gũi. Đây chính là lý do khiến nó được xếp trong top biệt thự cổ điển nổi bật của năm.

Ngoại thất tinh xảo – Nét quý phái trong từng chi tiết
Công trình top biệt thự cổ điển gây ấn tượng ngay từ mặt tiền đối xứng hoàn hảo. Hai hàng cột vuông vững chãi kết hợp mái hiên dốc nhẹ, tạo cảm giác cân đối và bề thế. Phần mái ngói ghi đậm kết hợp phào chỉ trắng thanh lịch giúp ngôi nhà nổi bật nhưng không phô trương.

Ánh sáng tự nhiên chiếu lên từng mảng tường, làm nổi bật khối kiến trúc cổ điển mà tinh tế. Cửa chính bằng gỗ tự nhiên kết hợp kính trong suốt, vừa giữ nét truyền thống, vừa mang lại ánh sáng cho không gian bên trong. Lan can ban công tầng hai được làm bằng sắt rèn hoa văn đối xứng, phủ sơn tĩnh điện chống gỉ, tạo nên vẻ đẹp bền bỉ qua năm tháng.

Các khung cửa sổ lớn với viền chỉ nổi và vòm cong nhẹ gợi nhớ nét kiến trúc châu Âu kinh điển. Sân trước được lát đá chống trơn, bao quanh là những luống cây xanh được cắt tỉa gọn gàng. Bậc tam cấp cao, ốp đá granite tự nhiên, giúp tôn dáng ngôi nhà. Cổng chính bằng thép sơn đồng màu mái, kết hợp hàng rào trắng tạo cảm giác thanh lịch và sang trọng

Không gian xung quanh được quy hoạch kỹ lưỡng, với sân phụ, lối đi lát đá và khu tiểu cảnh nhỏ phía sau. Ánh sáng, cây xanh và màu sắc được phối hợp hài hòa, mang đến cảm giác yên bình nhưng vẫn đẳng cấp. Đây chính là hình mẫu tiêu biểu cho top biệt thự cổ điển thời đại mới – sang trọng nhưng không phô trương.

Công năng đẳng cấp – Tối ưu cho cuộc sống tiện nghi
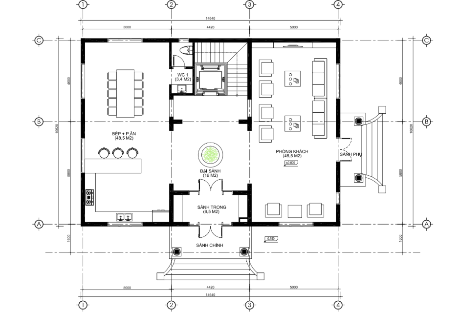
Ngôi biệt thự được bố trí công năng khoa học để đảm bảo tiện nghi tối đa cho gia đình. Tầng một gồm sảnh chính, phòng khách rộng, khu bếp ăn, một phòng ngủ và phòng thờ. Không gian khách được đặt trung tâm, trần cao thoáng, đón sáng tự nhiên từ hệ cửa lớn. Bếp và phòng ăn liên thông, tạo sự kết nối ấm áp trong sinh hoạt hằng ngày.

Phòng ngủ tầng một phù hợp cho người lớn tuổi, dễ di chuyển, gần khu vệ sinh chung. Phòng thờ được bố trí ở hướng chính, đảm bảo phong thủy và sự trang nghiêm. Từng chi tiết nội thất đều tuân theo tông màu nâu – be – vàng nhạt, giúp tổng thể thống nhất và sang trọng.

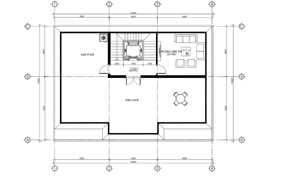
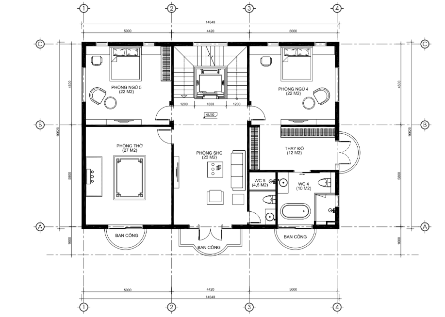
Tầng hai gồm khu sinh hoạt chung và ba phòng ngủ thoáng sáng. Phòng master có cửa mở ra ban công, tầm nhìn hướng vườn, tạo cảm giác thư giãn tuyệt đối. Hai phòng ngủ phụ được bố trí hợp lý, mỗi phòng đều có cửa sổ lớn đón ánh sáng và gió tự nhiên. Khu vệ sinh chung đặt cuối hành lang, thuận tiện và riêng tư.

Kết luận
Mỗi không gian trong ngôi biệt thự cổ điển cao cấp đều được chăm chút tỉ mỉ. Từ cách phối màu, lựa chọn vật liệu đến bố trí ánh sáng, tất cả đều mang đến cảm giác tiện nghi và sang trọng. Đây là minh chứng cho triết lý thiết kế “Đẹp đến từng chi tiết” mà HT-Home Việt Nam theo đuổi.

Sở hữu một căn trong top biệt thự cổ điển không chỉ là đầu tư cho hiện tại, mà còn là giữ gìn giá trị bền vững cho tương lai. HT-Home Việt Nam tự hào là đơn vị tiên phong mang phong cách kiến trúc cổ điển đến gần hơn với khách hàng Việt. Nếu bạn đang tìm kiếm một ngôi nhà mang đậm dấu ấn riêng, sang trọng và trường tồn, hãy để HT-Home đồng hành cùng bạn.

















