HT-Home Việt Nam đặt mục tiêu tạo ra một không gian xây mái bằng trọn gói vừa hiện đại vừa phù hợp ngân sách. Định hướng thiết kế là giải quyết nỗi lo diện tích nhỏ nhưng phải đủ phòng và đủ sáng.

Kiến trúc sư tập trung vào tối ưu cấu trúc, tăng ánh sáng và sự riêng tư. Mong muốn cuối cùng là mang đến một mẫu nhà mái bằng tiện nghi, đẹp và bền. Đây là lý do mẫu nhà 75m² trở thành lựa chọn đáng chú ý.

Ngoại thất hiện đại – tối ưu từng đường nét
Thiết kế ngoại thất nhấn mạnh sự mạnh mẽ của nhà mái bằng. Cổng nhà dùng khung thép sơn tĩnh điện kết hợp đá tối màu. Cổng rộng tạo cảm giác vững chắc và sang trọng. Hệ cửa chính dùng nhôm kính lớn giúp ánh sáng vào nhiều hơn. Kính được chia ô hài hòa với mảng tường vàng be.

Ban công tầng hai là điểm tạo nhịp cho mặt tiền. Lan can kính kết hợp tiểu cảnh tạo sự mềm mại. Màu sơn chủ đạo là trắng và vàng be, đi kèm đá ốp tạo chiều sâu cho không gian. Mái bằng thiết kế giật cấp giúp chống nóng tốt và tạo điểm đặc trưng riêng. Góc bo cong ở mặt tiền làm công trình mềm hơn và khác biệt so với các nhà cùng phân khúc.

Kiến trúc sư đưa vào phương án mới: tăng mảng kính đứng, nâng phần mái hiên và mở rộng ban công. Giải pháp này giúp ngôi nhà thoáng và có tính thẩm mỹ cao hơn. Tổng thể ngoại thất tạo ấn tượng vững vàng, hiện đại và phù hợp đô thị.

Nội thất liền mạch – tối ưu công năng cho gia đình trẻ
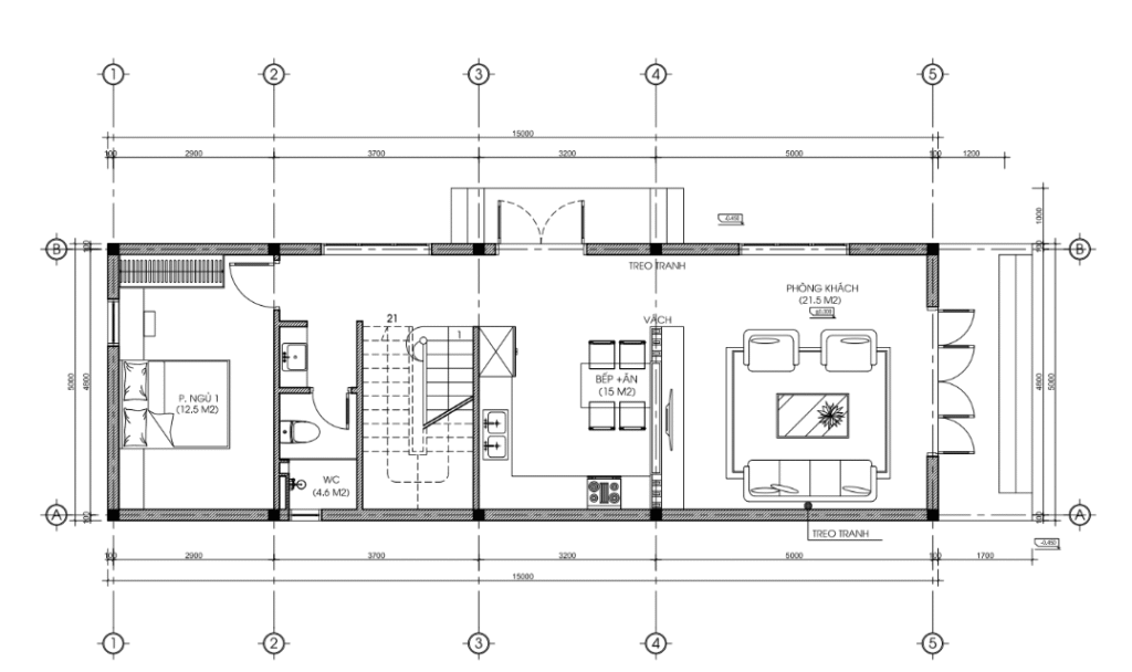
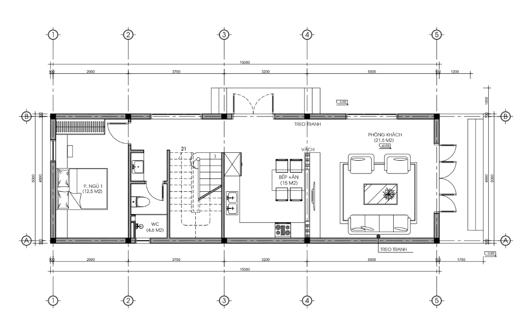
Không gian bên trong được bố trí liền mạch và rõ ràng theo từng tầng.
Tầng một có sảnh chính dẫn vào phòng khách. Phòng khách rộng thoáng với hệ cửa lớn. Bếp và ăn được đặt sau phòng khách, có khoảng đệm ánh sáng.

Một phòng ngủ nhỏ đặt cạnh sảnh sau, phù hợp người lớn tuổi. WC đặt cuối nhà giúp lưu thông thuận tiện. Thiết kế tầng một tập trung vào sự kết nối và tiện dụng.

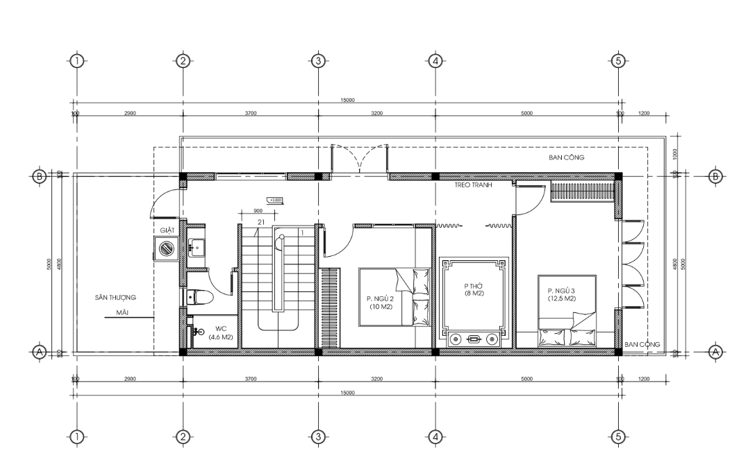
Tầng hai gồm hai phòng ngủ rộng rãi, mỗi phòng có cửa sổ lớn. Phòng thờ được đặt phía trước đảm bảo phong thủy. Sân thượng nằm cạnh phòng thờ, dùng làm nơi thư giãn. Khu WC đặt giữa các phòng để di chuyển dễ dàng. Không gian được nối liền bằng sảnh rộng, có ánh sáng tự nhiên từ giếng trời. Tất cả tạo nên một tầng hai thoáng, sáng và hợp lý.

Tổng thể công trình – giải pháp trọn gói đúng nhu cầu
Mẫu nhà 75m² là lựa chọn phù hợp cho gia đình trẻ muốn xây mái bằng trọn gói hiệu quả. Thiết kế đơn giản nhưng hiện đại, công năng đủ và hợp lý. Ngoại thất nổi bật với ban công mềm và các đường bo cong. Nội thất sáng, thoáng và tiện cho sinh hoạt hàng ngày. Công trình hoàn thiện đảm bảo tính bền và tiết kiệm chi phí.
HT-Home Việt Nam đồng hành trong toàn bộ quá trình từ thiết kế đến thi công. Chúng tôi cam kết minh bạch chi phí và tối ưu từng mét vuông. Nếu bạn đang tìm giải pháp xây mái bằng trọn gói, hãy liên hệ HT-Home để nhận tư vấn chi tiết và báo giá phù hợp.
















