
Ngoại thất khi xây nhà phố 2 tầng – Cân bằng, thoáng và có cá tính




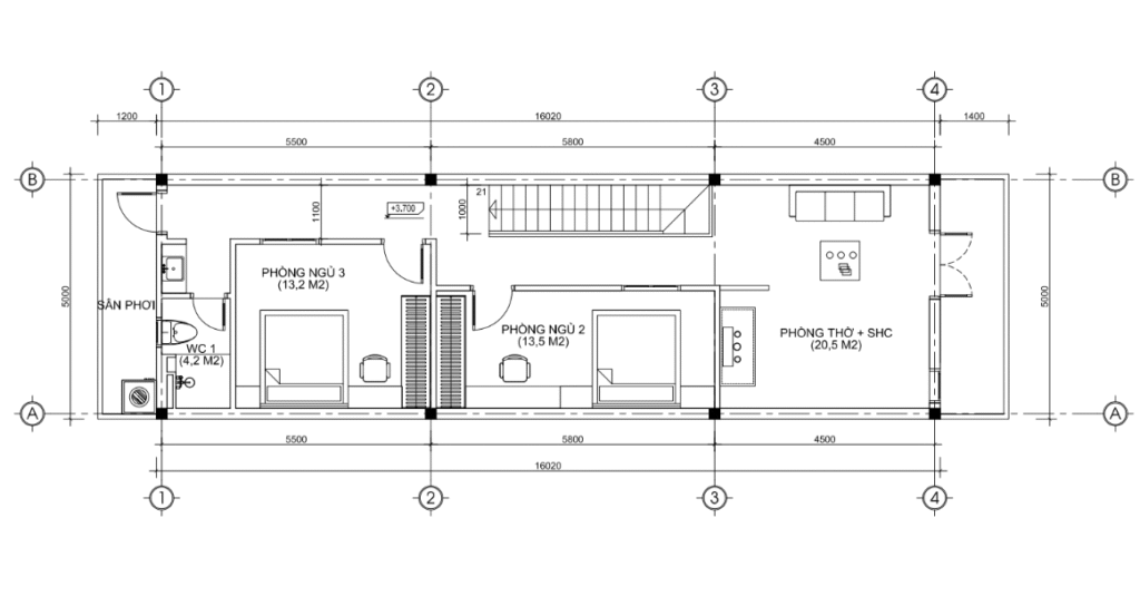
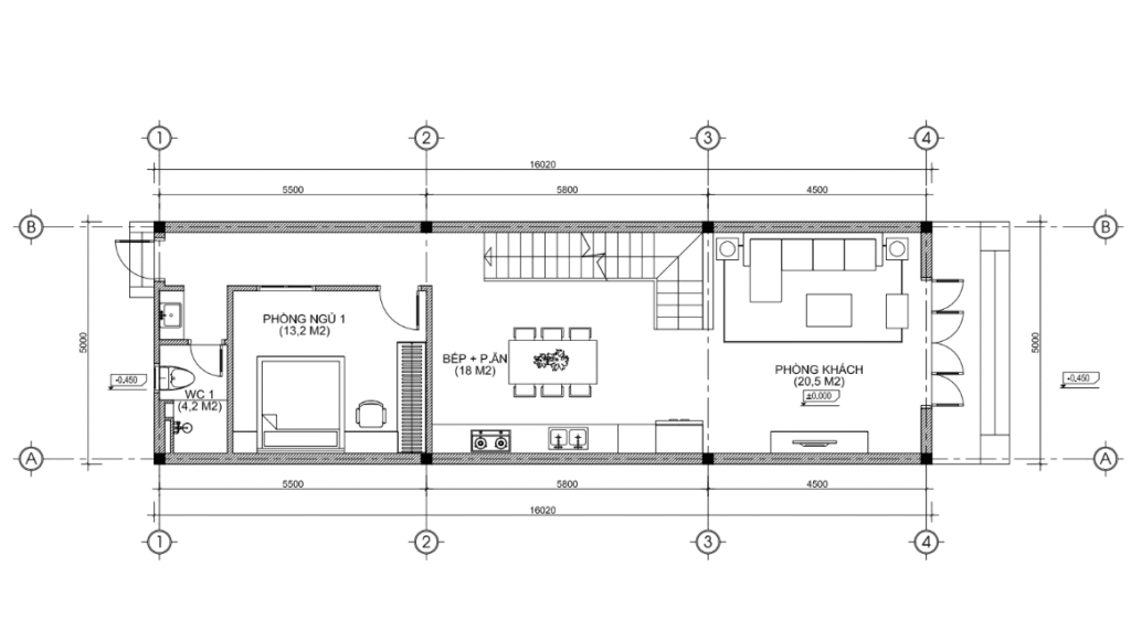
Nội thất và công năng – Rõ ràng theo từng tầng và mạch sử dụng



Liên hệ HT-Home Việt Nam để nhận tư vấn và báo giá chi tiết.
HT-Home Việt Nam là đơn vị chuyên sâu trong lĩnh vực thiết kế và thi công kiến trúc nội thất, cung cấp các giải pháp trọn gói cho nhà ở, biệt thự, văn phòng, showroom, căn hộ, khách sạn và các công trình dân dụng – thương mại khác.
Với phương châm “Kiến tạo không gian – Dựng xây giá trị bền vững”, chúng tôi không chỉ chú trọng đến tính thẩm mỹ mà còn đảm bảo tối ưu công năng và sự tiện nghi cho từng công trình.
Chúng tôi hiểu rằng, mỗi không gian là một câu chuyện, một dấu ấn riêng của gia chủ. Vì vậy, HT-Home Việt Nam luôn đề cao sự sáng tạo, tận tâm và đồng hành cùng khách hàng từ ý tưởng ban đầu đến khi công trình hoàn thiện.