Đất chật hẹp luôn khiến nhiều gia chủ đau đầu khi muốn xây nhà phố đất hẹp vừa đẹp vừa đủ công năng. Bài toán đặt ra cho kiến trúc sư là phải mở rộng cảm giác không gian theo chiều đứng, đồng thời tạo sự thông thoáng. Công trình 90m2 này là ví dụ điển hình cho tư duy thiết kế thông minh trên mặt bằng nhỏ

Ngoại thất hiện đại – Khối đứng mạnh mẽ và sự tinh tế trong từng chi tiết
Ý đồ của kiến trúc sư là tạo một công trình thẳng, gọn và sáng tối hài hòa. Cổng chính được thiết kế bằng thép đen, mặt đá phía dưới giúp công trình vững chắc hơn. Đây là lựa chọn tối ưu trong các mẫu xây nhà phố đất hẹp.
Cửa chính dùng kính toàn bộ, giúp ánh sáng vào mạnh. Cửa tầng hai và ba cũng theo dạng kính lớn, mang lại sự thoáng đãng. Hệ cửa đồng nhất khiến mặt tiền hòa quyện với ánh sáng tự nhiên.

Ban công là điểm nhấn quan trọng. Ban công tầng một thu gọn, ban công tầng hai rộng hơn và được trồng nhiều cây xanh. Ban công tầng ba lại mở tối đa để đón gió. Tất cả tạo nên nhịp điệu kiến trúc rất hợp cho ngôi nhà ba tầng.
Màu sắc chủ đạo là trắng, đen và nâu. Trắng mở rộng cảm giác không gian. Đen của khung cửa tạo chiều sâu. Nâu ốp tường ở lan can tăng sự ấm cúng. Đây là bảng màu lý tưởng cho xây nhà phố đất hẹp.

Mái bằng thiết kế phẳng, kết hợp mái che ở tầng ba. Mái che lớn tạo khu sinh hoạt ngoài trời tiện dụng. Đây là phương án mới giúp gia chủ có không gian thư giãn ngay trên mái.
Điểm đặc biệt nhất nằm ở khối ban công cong nhẹ ở tầng ba. Chi tiết này tạo độ mềm cho công trình và là dấu ấn nhận diện so với các mẫu phố thông thường.
Nội thất và công năng – Liền mạch theo tầng, tối ưu cho gia đình trẻ
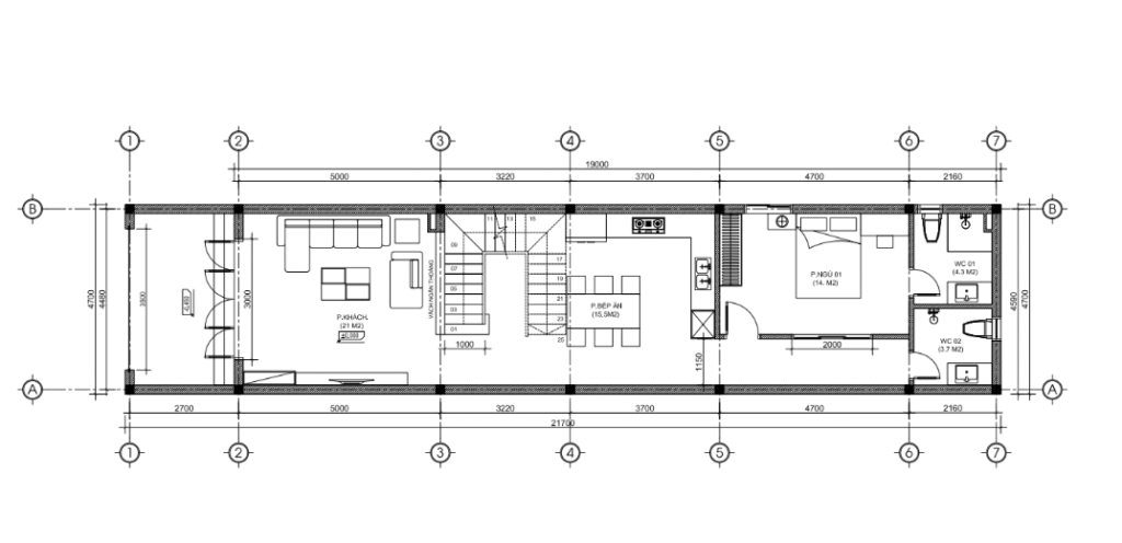
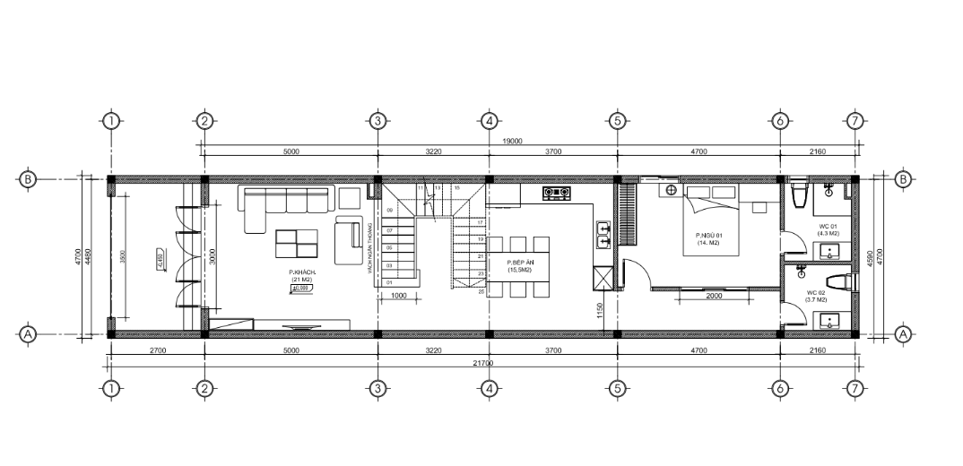
Tầng một gồm phòng khách, bếp ăn, một phòng ngủ và WC. Phòng khách được bố trí gần cửa để lấy sáng. Bộ sofa nhỏ gọn tạo lối di chuyển thoải mái. Bếp ăn nằm phía cuối, kết nối trực tiếp với cầu thang. Bếp chữ L giúp tận dụng tối đa diện tích. Phòng ngủ tầng một dành cho khách hoặc người lớn tuổi, cửa sổ nhỏ hỗ trợ thông gió.

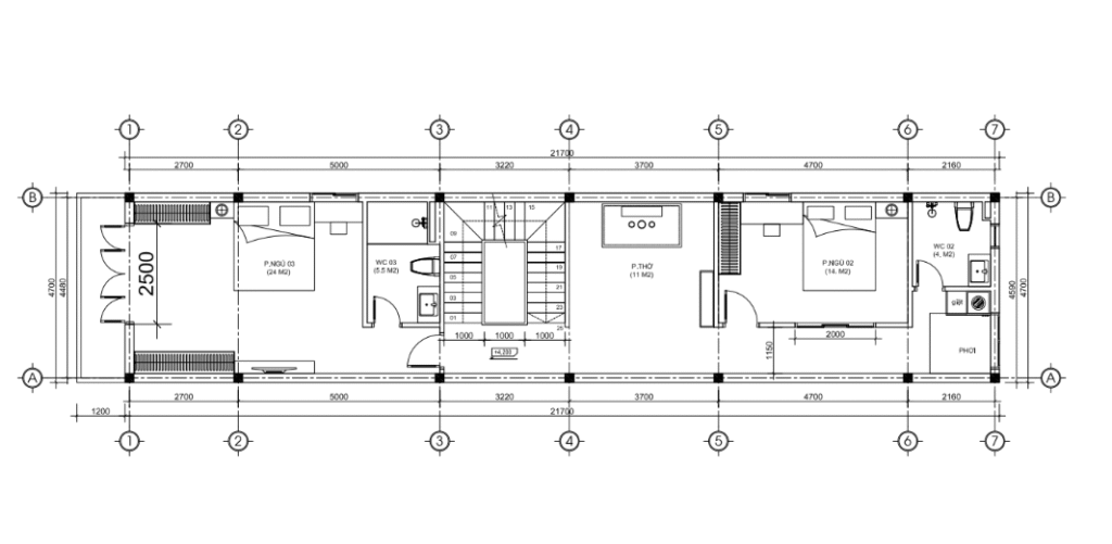
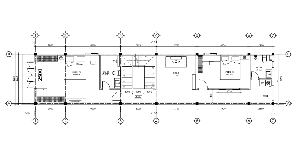
Tầng hai gồm phòng thờ, hai phòng ngủ Master. Phòng thờ đặt phía trước, đón ánh sáng tự nhiên và giữ sự trang trọng. Hai phòng ngủ Master có WC riêng. Đây là điểm gây chú ý vì trong một mặt bằng hẹp vẫn có hai phòng Master rộng. Ban công tầng hai tăng sự thoáng và giảm bí cho cả tầng.
Tầng ba có một phòng ngủ Master nữa. Không gian rộng, có cửa hướng ra mái che. Mái che tầng ba là ưu điểm lớn, phù hợp làm khu cà phê thư giãn. Khu này giúp mẫu xây nhà phố đất hẹp trở nên đáng sống hơn.

Công năng liền mạch theo chiều đứng. Dù diện tích nhỏ, mỗi tầng đều thoáng và sáng. Đây là thành công của kiến trúc sư trong việc xử lý nhà phố đất hẹp.
Mẫu nhà phù hợp gia đình trẻ hoặc gia đình nhiều thế hệ. Không gian linh hoạt, rất tiện khi có nhiều phòng Master. Ánh sáng và gió được tối ưu, đúng với yêu cầu khi xây nhà phố đất hẹp.
HT-Home Việt Nam – Giải pháp trọn gói cho nhà phố khó
HT-Home Việt Nam chuyên xử lý nhà đất hẹp. Các phương án luôn được tối ưu theo phong thủy, ánh sáng và công năng. Hơn nhiều mẫu nhà phố, HT-Home cam kết tư vấn rõ ràng và thi công đúng kỹ thuật.
Nếu bạn muốn một xây nhà phố đất hẹp hiện đại, thoáng và đầy đủ công năng, mẫu 90m2 này là lựa chọn đáng tham khảo.
Liên hệ HT-Home Việt Nam để nhận tư vấn và báo giá chi tiết.
















